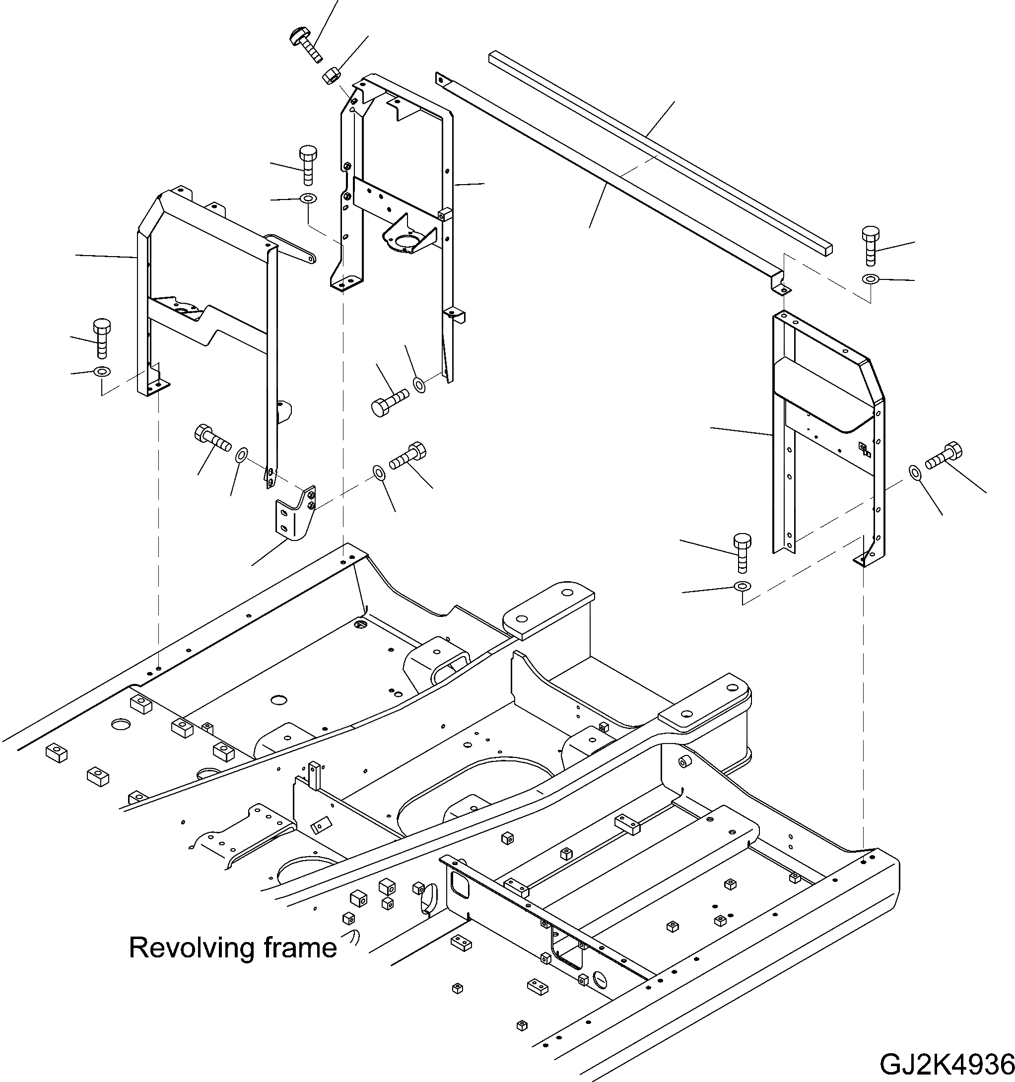
Запчасти Komatsu PW180-7E0 РАМА (КАБИНА) M ЧАСТИ КОРПУСА

Схема запчастей Komatsu PW180-7E0 - РАМА (КАБИНА) M ЧАСТИ КОРПУСА
2
3
19
4
1
5
10
9
12
11
5
13
4
15
6
14
17
7
15
8
18
7
16
8
FIT
1:1
100%

Артикул

Название

Примечание

Количество

1

20J-54-11712

FRAME, RHS

2

20Y-54-11611

STOPPER

3

01580-01008

NUT

4

01010-81225

BOLT

5

01643-31232

WASHER

6

20J-54-11752

FRAME, LHS

7

01010-81225

BOLT

8

01643-31232

WASHER

9

20J-54-10230

ANGLE

10

01010-81225

BOLT

11

01643-31232

WASHER

12

20J-54-11731

FRAME ASSEMBLY

13

01010-81225

BOLT

14

01010-81230

BOLT

15

01643-31232

WASHER

16

20J-54-11741

BRACKET

17

01010-81230

BOLT

18

01643-31232

WASHER

19

21K-54-71491

SHEET

Выбрано товаров: 19