Качественные детали и логистика
Оригинальные и аналоговые запчасти с доставкой по России, Казахстану и Беларуси
©2022 PartSell ООО "Система" ИНН 2463123282 ОГРН 1212400004838
Центральный офис: г. Красноярск, Академика Киренского, д.87, пом.4
Телефон: 8 (800) 777-65-74 Email: zakaz@partsell.ru
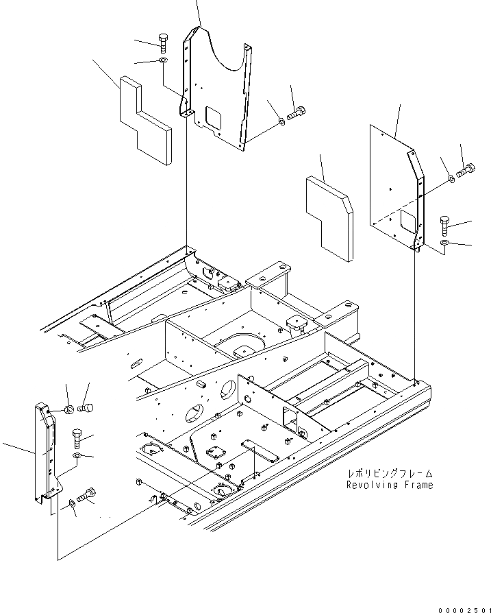
РАМА (КАБИНА)
№
Артикул
Название
Примечание
Количество
1
20K-54-21663
FRAME
2
20K-54-21673
SHEET
3
01643-31232
WASHER
4
01010-81230
BOLT
5
20K-54-21693
6
20K-54-21712
7
8
9
20K-54-21722
10
11
12
20Y-54-11611
STOPPER
13
01580-11008
NUT
Выбрано товаров: 0