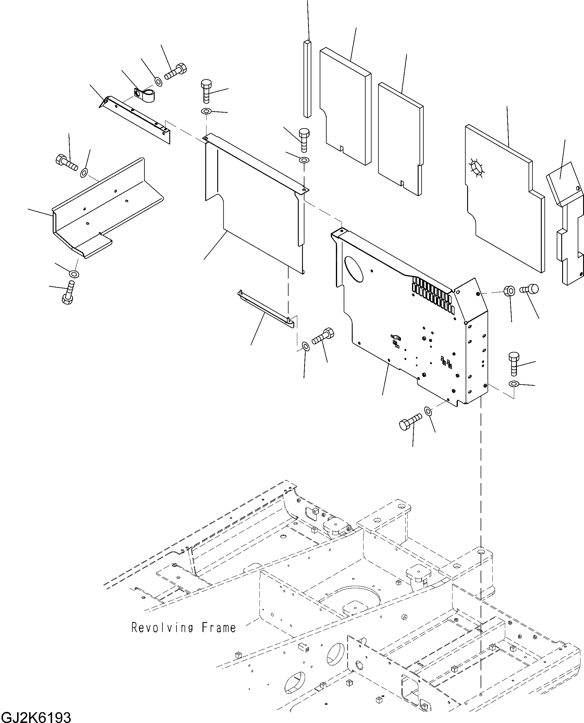
Запчасти Komatsu PW200-7 ЦЕНТР. ПЕРЕГОРОДКА. (КАБИНА) M ЧАСТИ КОРПУСА

Схема запчастей Komatsu PW200-7 - ЦЕНТР. ПЕРЕГОРОДКА. (КАБИНА) M ЧАСТИ КОРПУСА
11
10
16
8
17
15
18
12
1
13
22
12
5
23
13
21
23
9
22
3
4
14
6
19
7
20
2
7
6
FIT
1:1
100%

Артикул

Название

Примечание

Количество

|$1

20K-54-51240

FRAME ASSEMBLY

1

20K-54-21772

SHEET

2

FRAME

3

20Y-54-11611

STOPPER

4

01580-11008

NUT

5

20K-54-51050

SHEET

6

01010-81225

BOLT

7

01643-31232

WASHER

|$9

20K-54-H1520

FRAME ASSEMBLY

|$10

20K-54-51230

FRAME

8

20K-54-21410

SHEET

9

FRAME

10

20K-54-21814

SHEET

11

20K-54-H1350

SHEET

|$15

20K-54-51170

SHEET

12

01010-81225

BOLT

13

01643-31232

WASHER

14

20K-54-21832

BRACKET

15

04434-51912

CLIP

16

01010-81225

BOLT

17

01643-31232

WASHER

18

20K-54-21823

FRAME

19

01010-81225

BOLT

20

01643-31232

WASHER

21

20K-54-32513

SHIELD

22

01010-81240

BOLT

23

01643-31232

WASHER

Выбрано товаров: 27