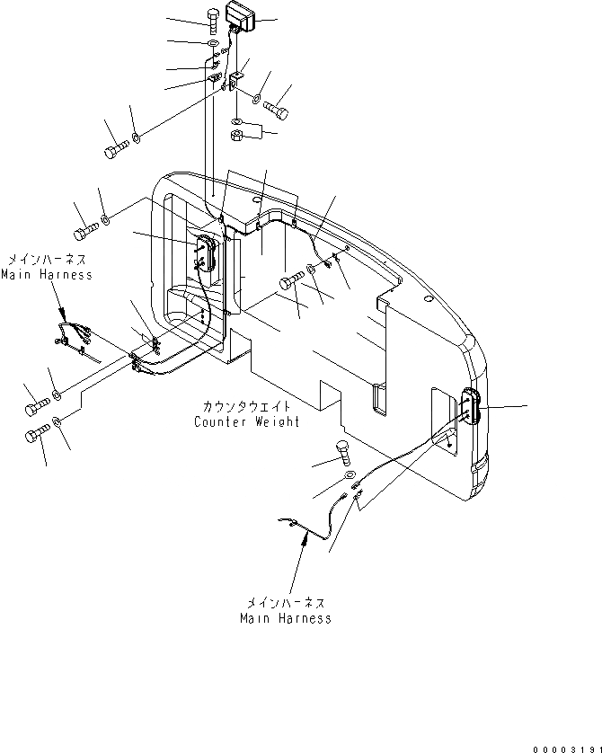
Запчасти Komatsu PW220-7K-KA ЭЛЕКТРОПРОВОДКА (ЗАДН. РАБОЧ. ОСВЕЩЕНИЕ И ЗАДН. ОСВЕЩЕНИЕ) ЭЛЕКТРИКА

Схема запчастей Komatsu PW220-7K-KA - ЭЛЕКТРОПРОВОДКА (ЗАДН. РАБОЧ. ОСВЕЩЕНИЕ И ЗАДН. ОСВЕЩЕНИЕ) ЭЛЕКТРИКА
1
2
3
3
4
4
4
5
5
5
6
6
7
8
8
9
9
10
10
11
11
12
13
14
14
15
16
17
18
19
FIT
1:1
100%

Артикул

Название

Примечание

Количество

1

20Y-06-21590

BRACKET

2

20Y-06-21551

BRACKET

3

207-06-K1520

WORK LAMP ASS'Y,REAR

4

01643-31232

WASHER

5

01010-81225

BOLT

6

20K-06-31740

LAMP,REAR

7

20K-06-32221

WIRING HARNESS

8

08193-21012

CLIP

9

01643-31032

WASHER

10

01010-81020

BOLT

11

04434-51008

CLIP

12

01643-30823

WASHER

13

01010-80820

BOLT

14

08053-01510

CLIP

15

01643-30823

WASHER

16

01010-80820

BOLT

17

01643-31032

WASHER

18

01010-81020

BOLT

19

08053-01512

CLIP

Выбрано товаров: 19