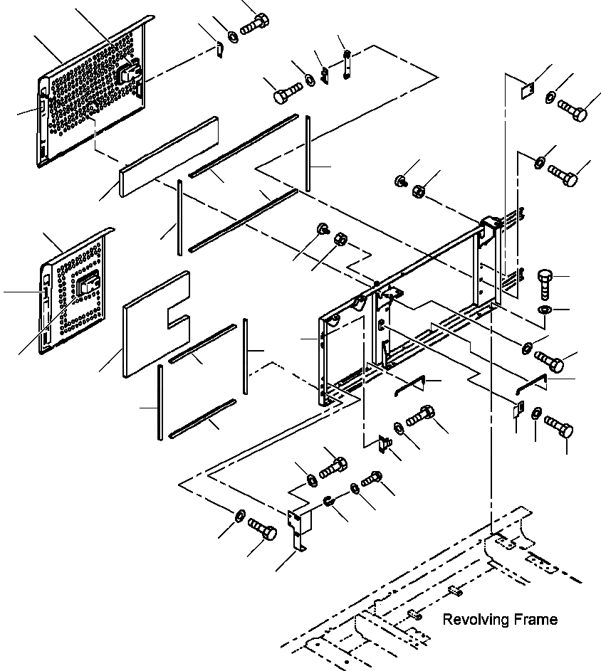
Запчасти Komatsu PW400MH-6 FIG. M-A ПРАВ. ДВЕРЬ - КАБИНА ЧАСТИ КОРПУСА

Схема запчастей Komatsu PW400MH-6 - FIG. M-A ПРАВ. ДВЕРЬ - КАБИНА ЧАСТИ КОРПУСА
8
6
9
7
11
4
14
16
17
19
15
18
5
13
23
12
24
22
21
21
40
1
22
31
38
32
2
25
39
34
10
33
29
3
30
41
20
28
29
30
46
36
27
47
37
26
35
44
45
43
34
33
42
FIT
1:1
100%

Артикул

Название

Примечание

Количество

1

208-54-61212

COVER

2

207-54-61870

HINGE

3

198-54-41982

LOCK ASSEMBLY

4

208-54-68462

COVER

5

207-54-61870

HINGE

6

198-54-41982

LOCK ASSEMBLY

7

205-54-53550

DOVE TAIL

8

01010-80612

BOLT

9

01643-30623

WASHER

10

208-54-68262

FRAME, R.H.

11

20Y-54-28170

BRACKET

12

01010-81230

BOLT

13

01643-31232

WASHER

14

205-54-51970

DOVE TAIL

15

01010-80616

BOLT

16

01643-30623

WASHER

17

20Y-54-28182

PLATE

18

01010-81230

BOLT

19

01643-31232

WASHER

20

20Y-54-29232

BAR

21

20Y-54-29251

SEAL

22

20Y-54-29261

SEAL

23

203-54-11611

STOPPER

24

01580-11008

NUT

25

207-54-61141

PLATE

26

01010-81225

BOLT

27

01643-51232

WASHER

28

20Y-54-29232

BAR

29

20Y-54-29261

SEAL

30

207-54-61260

SEAL

31

20Y-54-11611

STOPPER

32

01580-11008

NUT

33

01010-81230

BOLT

34

01643-31232

WASHER

35

20Y-54-12920

CLAMP

36

01010-81025

BOLT

37

01643-31032

WASHER

38

01010-81230

BOLT

39

01643-31232

WASHER

40

208-54-64650

SHEET

41

208-54-69360

SHEET

42

207-54-61860

BRACKET

43

203-54-63230

CLAMP

44

01220-40612

SCREW

45

01641-20608

WASHER

46

01010-81230

BOLT

47

01643-31232

WASHER

Выбрано товаров: 47