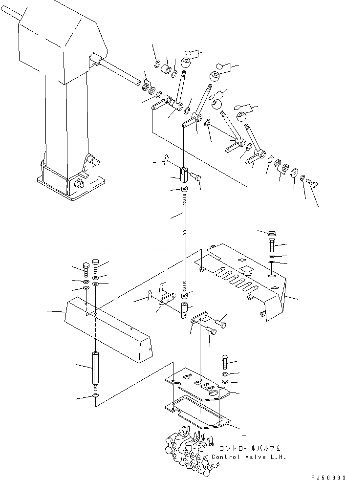
Запчасти Komatsu GD305A-1 ГИДРАВЛ РЫЧАГ УПРАВЛ-Я¤ ЛЕВ.(№-) СИСТЕМА УПРАВЛЕНИЯ

Схема запчастей Komatsu GD305A-1 - ГИДРАВЛ РЫЧАГ УПРАВЛ-Я¤ ЛЕВ.(№-) СИСТЕМА УПРАВЛЕНИЯ
1
2
3
4
5
6
7
8
9
10
10
10
10
10
10
10
11
11
12
13
14
15
16
17
18
19
20
21
22
22
23
24
25
26
27
28
29
30
31
32
33
34
35
36
37
38
39
40
41
42
43
44
45
FIT
1:1
100%

Артикул

Название

Примечание

Количество

1

23E-43-18140

LEVER,CIRCLE REVERSE

SN: 6001-6500

1шт.

2

237-43-00070

KNOB ASS'Y,CIRCLE REVERSE

SN: 6001-@

1шт.

|2

237-43-17480

KNOB

SN: 6001-@

1шт.

|2

237-54-13250

PLATE¤ OPERATING

SN: 6001-@

1шт.

3

23E-43-18130

LEVER,BLADE LIFT¤ L.H.

SN: 6001-6500

1шт.

4

237-43-00080

KNOB ASS'Y,BLADE LIFT

SN: 6001-@

1шт.

|4

237-43-17480

KNOB

SN: 6001-@

1шт.

|4

237-54-13210

PLATE¤ OPERATING

SN: 6001-@

1шт.

5

23E-43-18180

LEVER,ARTICULATE

SN: 6001-6500

1шт.

6

237-43-00100

KNOB ASS'Y,ARTICULATE

SN: 6001-@

1шт.

|6

237-43-17490

KNOB

SN: 6001-@

1шт.

|6

237-54-13260

PLATE¤ OPERATING

SN: 6001-@

1шт.

7

23E-43-18190

LEVER,SCARIFIER

SN: 6001-6500

1шт.

8

237-43-00090

KNOB ASS'Y,SCARIFIER

SN: 6001-@

1шт.

|8

237-43-17480

KNOB

SN: 6001-@

1шт.

|8

237-54-13270

PLATE¤ OPERATING

SN: 6001-@

1шт.

9

237-43-17440

COLLAR

SN: 6001-@

1шт.

10

237-43-17420

WASHER

SN: 6001-6500

7шт.

11

23D-43-18540

COLLAR

SN: 6001-6500

4шт.

12

23A-43-18190

WASHER

SN: 6001-@

1шт.

13

01220-40816

SCREW

SN: 6001-@

1шт.

14

01643-30823

WASHER

SN: 6001-@

1шт.

15

04221-20844

YOKE

SN: 6001-6500

4шт.

16

01508-20805

NUT

SN: 6001-@

4шт.

17

04205-10822

PIN

SN: 6001-6500

4шт.

18

234-43-18710

PIN,SNAP

SN: 6001-6500

4шт.

19

23A-43-18460

ROD

SN: 6001-@

4шт.

20

23A-43-18290

JOINT

SN: 6001-6500

4шт.

21

01580-10806

NUT

SN: 6001-@

4шт.

22

23A-43-18320

PLATE

SN: 6001-6500

8шт.

23

04205-10618

PIN

SN: 6001-@

4шт.

24

233-43-27750

PIN,SNAP

SN: 6001-@

4шт.

25

23A-43-18360

PIN

SN: 6001-6500

8шт.

26

04052-00530

PIN,SNAP

SN: 6001-6500

8шт.

27

23B-43-18330

PLATE

SN: 6001-6500

1шт.

28

23D-43-18570

SEAT

SN: 6001-6500

1шт.

29

01010-50625

BOLT

SN: 6001-6500

1шт.

30

01643-30623

WASHER

SN: 6001-6500

1шт.

31

01643-30623

WASHER

SN: 6001-6500

1шт.

32

23E-43-18270

COVER

SN: 6001-6500

1шт.

33

01010-51225

BOLT

SN: 6001-6500

3шт.

34

01643-31232

WASHER

SN: 6001-6500

3шт.

35

01643-31445

WASHER

SN: 6001-6500

3шт.

36

09415-02520

CAP

SN: 6001-6500

3шт.

37

23D-43-18630

BOLT

SN: 6001-6500

1шт.

38

01643-30623

WASHER

SN: 6001-6500

1шт.

39

23E-43-18260

COVER

SN: 6001-6500

1шт.

40

01010-50616

BOLT

SN: 6001-6500

1шт.

41

01642-20608

WASHER

SN: 6001-6500

1шт.

42

01643-30823

WASHER

SN: 6001-6500

1шт.

43

01010-50612

BOLT

SN: 6001-6500

3шт.

44

01642-20608

WASHER

SN: 6001-6500

3шт.

45

01643-30823

WASHER

SN: 6001-6500

3шт.

Выбрано товаров: 53