Запчасти Komatsu GD31-1 ТОРМОЗ. И МУФТА ПЕДАЛЬS(№-) КОЛЕСА¤ РУЛЕВ. УПРАВЛЕНИЕ И СИСТЕМА УПРАВЛЕНИЯS

Схема запчастей Komatsu GD31-1 - ТОРМОЗ. И МУФТА ПЕДАЛЬS(№-) КОЛЕСА¤ РУЛЕВ. УПРАВЛЕНИЕ И СИСТЕМА УПРАВЛЕНИЯS
FIT
1:1
100%

Артикул

Название

Примечание

Количество

|$0

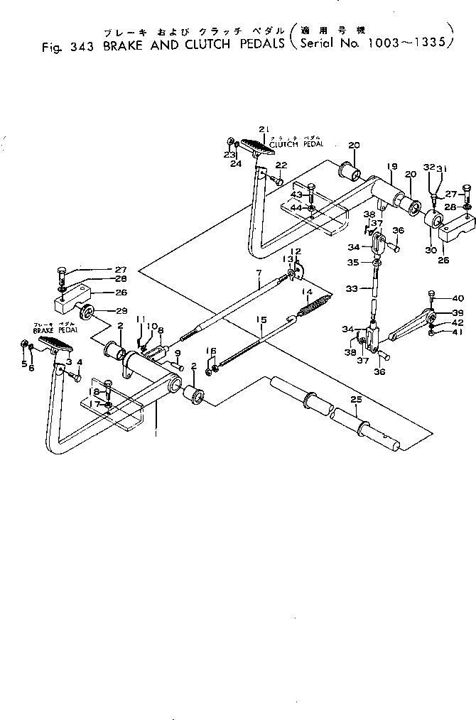
233-43-00031

PEDAL ASS'Y

SN: 1003-1335

1шт.

1

232-43-13110

ARM

SN: 1003-1335

1шт.

2

232-43-13121

BUSHING

SN: 1003-1335

2шт.

3

232-43-13130

PEDAL

SN: 1003-@

1шт.

4

01000-41040

BOLT

SN: 1003-1335

1шт.

5

01500-41008

NUT

SN: 1003-@

1шт.

6

01602-11030

WASHER

SN: 1003-@

1шт.

7

232-43-13140

ROD

SN: 1003-1335

1шт.

8

04211-01266

YOKE

SN: 1003-@

1шт.

9

04205-01235

PIN

SN: 1003-@

1шт.

10

01641-11220

WASHER

SN: 1003-@

1шт.

11

04050-03020

PIN

SN: 1003-@

1шт.

12

232-43-13150

HOOK

SN: 1003-@

1шт.

13

01650-01412

WASHER

SN: 1003-@

1шт.

14

232-43-13160

SPRING

SN: 1003-@

2шт.

15

232-43-13170

BOLT

SN: 1003-@

1шт.

16

01500-41008

NUT

SN: 1003-@

2шт.

17

232-43-13180

BOLT

SN: 1003-1335

1шт.

18

01500-41210

NUT

SN: 1003-1335

1шт.

|$19

232-43-00042

PEDAL ASS'Y

SN: 1193-1335

1шт.

|$20

232-43-00041

PEDAL ASS'Y

SN: 1003-1192

1шт.

19

232-43-15111

ARM

SN: 1193-1335

1шт.

19

232-43-15110

ARM

SN: 1003-1192

1шт.

20

232-43-13121

BUSHING

SN: 1003-1335

2шт.

21

232-43-13130

PEDAL

SN: 1003-@

1шт.

22

01000-41040

BOLT

SN: 1003-1335

1шт.

23

01500-41008

NUT

SN: 1003-@

1шт.

24

01602-11030

WASHER

SN: 1003-@

1шт.

25

232-43-15120

SHAFT

SN: 1003-@

1шт.

26

232-43-15130

BUSHING

SN: 1003-@

2шт.

27

01000-41450

BOLT

SN: 1003-1335

4шт.

28

01602-11442

WASHER

SN: 1003-@

4шт.

29

232-43-15150

SHIM

SN: 1003-1335

4шт.

30

232-43-15160

SPACER

SN: 1003-@

1шт.

31

01306-01025

SCREW

SN: 1003-@

1шт.

32

04059-01020

WIRE

SN: 1003-@

1шт.

33

232-43-15170

ROD

SN: 1003-@

1шт.

34

04211-01266

YOKE

SN: 1003-@

2шт.

35

01501-41207

NUT

SN: 1003-@

1шт.

36

04205-01235

PIN

SN: 1003-@

2шт.

37

01641-11220

WASHER

SN: 1003-@

2шт.

38

04050-03020

PIN

SN: 1003-@

2шт.

39

232-43-15180

LEVER

SN: 1003-@

1шт.

40

01000-40855

BOLT

SN: 1003-@

1шт.

41

01500-40807

NUT

SN: 1003-@

1шт.

42

01602-10825

WASHER

SN: 1003-@

1шт.

43

232-43-13180

BOLT

SN: 1003-1335

1шт.

44

01500-41210

NUT

SN: 1003-1335

1шт.

Выбрано товаров: 48