Запчасти Komatsu GD355A-1 ПЕРЕДНИЙ МОСТ (/) СИЛОВАЯ ПЕРЕДАЧА

Схема запчастей Komatsu GD355A-1 - ПЕРЕДНИЙ МОСТ (/) СИЛОВАЯ ПЕРЕДАЧА
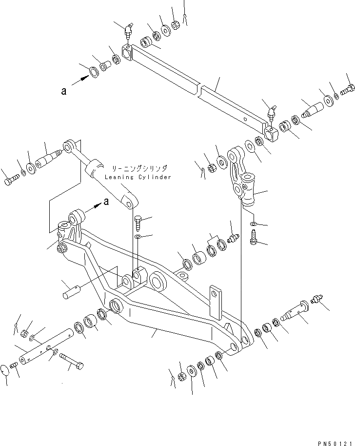
1
2
2
3
3
3
3
4
5
6
7
8
9
9
10
11
12
12
13
13
14
14
14
14
15
16
17
18
19
20
21
22
23
24
25
26
27
28
29
30
30
31
31
31
31
32
32
33
34
35
36
37
38
39
40
41
42
43
44
45
FIT
1:1
100%

Артикул

Название

Примечание

Количество

1

23D-27-11112

AXLE

SN: 5084-UP

1шт.

|1

23D-27-11111

AXLE

SN: 5012-5083

1шт.

|1

23D-27-11110

AXLE

SN: 5001-5011

1шт.

2

23D-27-11610

BUSHING

SN: 5001-UP

2шт.

3

07145-00045

SEAL,DUST

SN: 5001-UP

5шт.

4

23D-27-11350

SHAFT

SN: 5001-UP

1шт.

5

07020-00000

FITTING,GREASE

SN: 5001-UP

1шт.

6

23A-27-12210

SCREW

SN: 5001-UP

1шт.

|6

0

SCREW

SN: (5001-5010)

1шт.

7

01093-51625

BOLT

SN: 5001-UP

1шт.

8

01593-11613

NUT

SN: 5001-UP

1шт.

9

07005-01612

GASKET,WASHER

SN: 5001-UP

2шт.

10

04050-14025

PIN,COTTER

SN: 5001-UP

1шт.

11

23B-27-11360

PLUG

SN: 5001-UP

1шт.

12

23D-27-11160

BRACKET

SN: 5001-UP

2шт.

13

23D-27-11620

BUSHING

SN: 5001-UP

4шт.

14

07145-00035

SEAL,DUST

SN: 5001-UP

8шт.

15

23D-27-11520

PIN

SN: 5001-UP

2шт.

16

07020-00000

FITTING,GREASE

SN: 5001-UP

2шт.

17

23D-27-11640

WASHER

SN: 5001-UP

2шт.

18

01593-12414

NUT

SN: 5001-UP

2шт.

19

04050-15035

PIN,COTTER

SN: 5001-UP

2шт.

20

23D-27-11650

BOLT

SN: 5001-UP

2шт.

21

01643-31232

WASHER

SN: 5001-UP

2шт.

22

23D-27-11530

PIN

SN: 5001-UP

1шт.

23

23D-27-11690

BOLT

SN: 5072-UP

1шт.

|23

23D-27-11680

BOLT

SN: 5001-5071

1шт.

24

01643-31232

WASHER

SN: 5001-UP

1шт.

25

23D-27-11330

PIN

SN: 5001-UP

1шт.

26

23D-27-11340

HOLDER

SN: 5001-UP

1шт.

27

01010-51635

BOLT

SN: 5001-UP

1шт.

28

01643-31645

WASHER

SN: 5001-UP

1шт.

29

23D-27-11231

ROD,LEANING

SN: 5084-UP

1шт.

|29

23D-27-11230

ROD,LEANING

SN: 5001-5083

1шт.

30

23D-27-11630

BUSHING

SN: 5001-UP

2шт.

31

07145-00040

SEAL,DUST

SN: 5001-UP

4шт.

32

07020-00675

FITTING,GREASE

SN: 5001-UP

2шт.

33

23A-27-11370

COLLAR

SN: 5536-UP

1шт.

|33

23D-27-11380

COLLAR

SN: 5001-5535

1шт.

34

23D-27-11390

SPACER

SN: 5001-UP

1шт.

35

23D-27-11640

WASHER

SN: 5001-UP

1шт.

36

01593-12414

NUT

SN: 5001-UP

1шт.

37

04050-15035

PIN,COTTER

SN: 5001-UP

1шт.

38

23D-27-11370

COLLAR

SN: 5001-UP

1шт.

39

23D-27-11310

PIN

SN: 5001-UP

1шт.

40

23D-27-11340

HOLDER

SN: 5001-UP

1шт.

41

01010-51635

BOLT

SN: 5001-UP

1шт.

42

01643-31645

WASHER

SN: 5001-UP

1шт.

43

01643-32460

WASHER

SN: 5001-UP

1шт.

44

01593-12414

NUT

SN: 5001-UP

1шт.

45

04050-15035

PIN,COTTER

SN: 5001-UP

1шт.

Выбрано товаров: 51