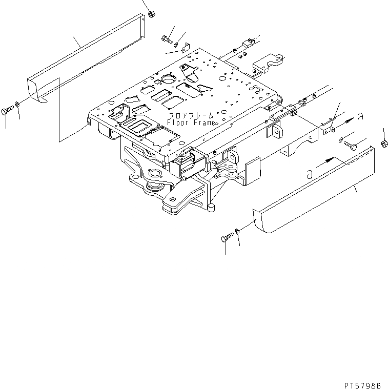
Запчасти Komatsu GD355A-3 КАБИНА ОПЕРАТОРА (БОКОВ. КРЫШКА) (РЕЗИН. КРЕПЛЕНИЕ ТИП) РАМА И ЧАСТИ КОРПУСА

Схема запчастей Komatsu GD355A-3 - КАБИНА ОПЕРАТОРА (БОКОВ. КРЫШКА) (РЕЗИН. КРЕПЛЕНИЕ ТИП) РАМА И ЧАСТИ КОРПУСА
1
1
2
2
3
3
4
4
5
6
7
7
8
8
FIT
1:1
100%

Артикул

Название

Примечание

Количество

1

23E-54-32491

BRACKET

SN: 7001-UP

2шт.

2

01010-81225

BOLT

SN: 7001-UP

2шт.

3

01643-31232

WASHER

SN: 7001-UP

2шт.

4

01584-01008

NUT

SN: 7001-UP

2шт.

5

23E-54-32451

COVER,L.H.

SN: 7001-UP

1шт.

6

23E-54-32461

COVER,R.H.

SN: 7001-UP

1шт.

7

01010-81020

BOLT

SN: 7001-UP

2шт.

8

01643-31032

WASHER

SN: 7001-UP

2шт.

Выбрано товаров: 0