Запчасти Komatsu GD405A-2 ЗАДН. РАМА(№-999) РАМА И ЧАСТИ КОРПУСА

Схема запчастей Komatsu GD405A-2 - ЗАДН. РАМА(№-999) РАМА И ЧАСТИ КОРПУСА
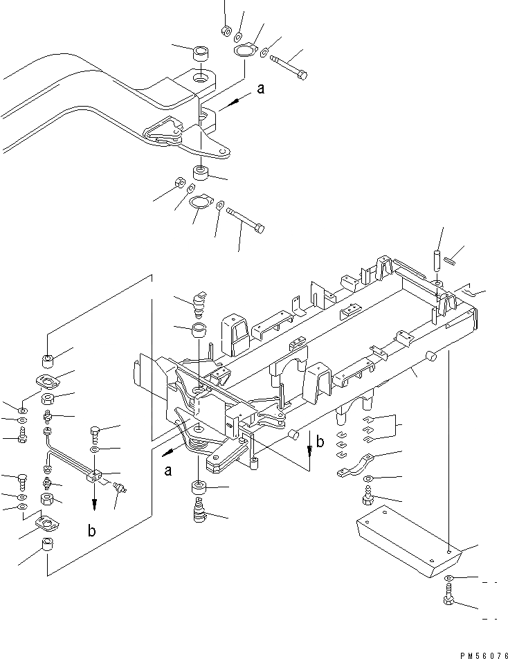
1
2
3
4
5
6
6
7
7
8
8
9
9
10
10
11
11
12
12
12
12
13
13
14
14
15
15
16
16
17
17
18
18
19
20
21
22
23
23
24
25
26
27
28
29
FIT
1:1
100%

Артикул

Название

Примечание

Количество

1

23D-46-12010

FRAME,REAR

SN: 1001-1999

1шт.

2

23A-46-12320

CAP

SN: 1001-@

2шт.

3

23A-46-00110

SHIM ASS'Y

SN: 1001-@

2шт.

|3

0

SHIM¤ 0.1MM

SN: 1001-@

1шт.

|3

0

SHIM¤ 0.2MM

SN: 1001-@

2шт.

|3

0

SHIM¤ 0.5MM

SN: 1001-@

1шт.

4

01011-52765

BOLT

SN: 1001-@

4шт.

5

01643-32780

WASHER

SN: 1001-@

4шт.

6

232-46-53211

BUSHING

SN: 1296-@

2шт.

|6

232-46-53210

BUSHING

SN: 1001-1295

2шт.

7

236-46-13381

BUSHING

SN: 1296-@

2шт.

|7

236-46-13380

BUSHING

SN: 1001-1295

2шт.

8

236-46-13390

BUSHING

SN: 1001-@

2шт.

9

236-46-13610

O-RING

SN: 1001-@

4шт.

10

235-46-11710

BOLT

SN: 1001-@

4шт.

11

01598-00608

NUT

SN: 1001-@

4шт.

12

01640-20610

WASHER

SN: 1001-@

8шт.

13

23A-46-11371

PIN

SN: 1296-@

2шт.

|13

23A-46-11370

PIN

SN: 1001-1295

2шт.

14

236-46-13410

NUT

SN: 1001-@

2шт.

15

23A-46-11380

PLATE

SN: 1001-@

2шт.

16

01010-51630

BOLT

SN: 1001-@

4шт.

17

01643-31645

WASHER

SN: 1001-@

4шт.

18

01643-31645

WASHER

SN: 1001-@

4шт.

19

23A-46-11480

TUBE

SN: 1001-@

1шт.

20

07020-00000

FITTING,GREASE

SN: 1001-@

2шт.

21

01010-51235

BOLT

SN: 1001-@

1шт.

22

01643-31232

WASHER

SN: 1001-@

1шт.

23

07213-50610

CONNECTOR

SN: 1001-@

2шт.

24

232-46-11711

PIN

SN: 1001-@

1шт.

25

04025-01065

PIN,SPRING

SN: 1001-@

1шт.

26

232-46-11920

PIN,SNAP

SN: 1001-@

1шт.

27

23D-846-1210

WEIGHT

SN: 1001-1999

1шт.

28

01011-52050

BOLT

SN: 1001-1999

4шт.

29

01643-32060

WASHER

SN: 1001-@

4шт.

Выбрано товаров: 35