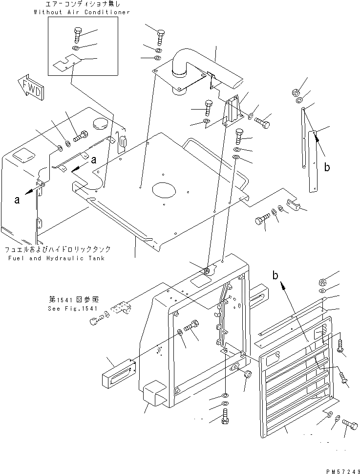
Запчасти Komatsu GD405A-2 ЗАЩИТА РАДИАТОРА AND КАПОТ (С FOLDING ТИП НАВЕС)(№-) РАМА И ЧАСТИ КОРПУСА

Схема запчастей Komatsu GD405A-2 - ЗАЩИТА РАДИАТОРА AND КАПОТ (С FOLDING ТИП НАВЕС)(№-) РАМА И ЧАСТИ КОРПУСА
1
2
3
4
5
6
7
8
9
10
11
11
12
12
13
13
14
15
16
17
18
19
20
21
22
23
24
25
26
26
26
27
27
27
28
28
28
29
30
31
31
32
33
34
35
36
FIT
1:1
100%

Артикул

Название

Примечание

Количество

|1

23D-956-1580

GRILLE,(MODIFIED PARTS)

SN: 2001-3400

1шт.

1

23E-54-11113

GRILLE

SN: 2001-3400

1шт.

2

01580-11008

NUT (WELDED)

SN: 2001-3400

1шт.

3

23E-06-12410

BRACKET

SN: 2001-3400

2шт.

4

01010-50816

BOLT

SN: 2001-@

8шт.

5

01643-30823

WASHER

SN: 2001-@

8шт.

6

23E-54-11120

COVER

SN: 2001-3400

1шт.

7

23E-54-11520

PLATE,BAFFLE

SN: 2001-@

1шт.

8

23E-54-11510

PLATE

SN: 2001-@

1шт.

9

23E-54-11140

PLATE,BAFFLE

SN: 2001-@

2шт.

10

23E-54-11180

PLATE

SN: 2001-@

2шт.

11

01220-30610

SCREW

SN: 2001-3400

9шт.

12

01643-30623

WASHER

SN: 2001-@

9шт.

13

01580-10605

NUT

SN: 2001-@

9шт.

14

01010-51025

BOLT

SN: 2001-@

4шт.

15

01643-31032

WASHER

SN: 2001-@

4шт.

16

234-54-13252

WASHER

SN: 2001-@

4шт.

17

01010-51025

BOLT

SN: 2001-@

4шт.

18

01643-31032

WASHER

SN: 2001-@

4шт.

19

01643-31232

WASHER

SN: 2001-@

4шт.

|20

23D-956-1590

HOOD,(MODIFIED PARTS)

SN: 2001-@

1шт.

20

23D-54-13210

HOOD

SN: 2001-3400

1шт.

21

23D-956-1560

PIPE,EXHAUST

SN: 2001-@

1шт.

22

01010-51025

BOLT

SN: 2001-@

4шт.

23

01643-31032

WASHER

SN: 2001-@

4шт.

24

232-43-58360

WASHER

SN: 2001-@

4шт.

25

23B-54-15590

PLATE

SN: 2001-@

2шт.

26

01010-51025

BOLT

SN: 2001-3400

9шт.

27

01643-31032

WASHER

SN: 2001-3400

9шт.

28

234-54-13252

WASHER

SN: 2001-3400

9шт.

29

08037-01008

GROMMET

SN: 2001-@

2шт.

30

23D-956-1570

BRACKET

SN: 2001-@

1шт.

31

01010-51020

BOLT

SN: 2001-@

4шт.

32

01643-31032

WASHER

SN: 2001-@

2шт.

33

234-54-13252

WASHER

SN: 2001-@

2шт.

34

235-54-13280

PLATE

SN: 2001-3400

1шт.

35

01010-51016

BOLT

SN: 2001-3400

2шт.

36

01643-31032

WASHER

SN: 2001-3400

2шт.

Выбрано товаров: 38