Запчасти Komatsu GD405A-3 ГИДРАВЛ РЫЧАГ УПРАВЛ-Я¤ ЛЕВ. СИСТЕМА УПРАВЛЕНИЯ

Схема запчастей Komatsu GD405A-3 - ГИДРАВЛ РЫЧАГ УПРАВЛ-Я¤ ЛЕВ. СИСТЕМА УПРАВЛЕНИЯ
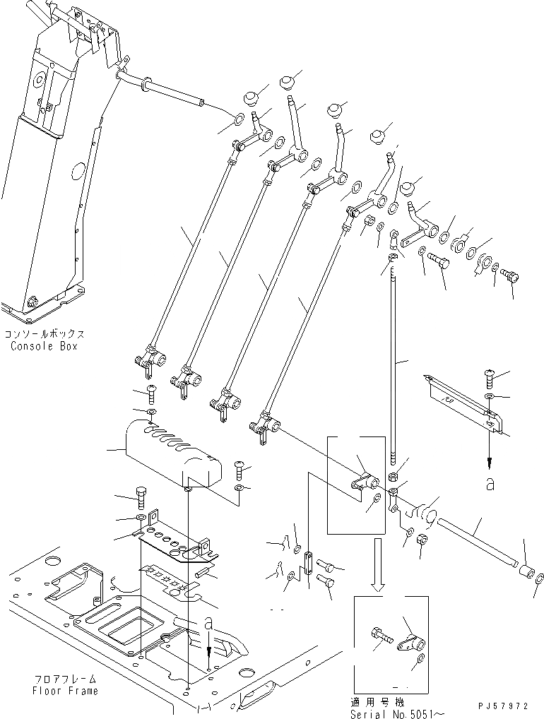
1
2
3
4
5
6
7
8
9
10
11
11
11
11
11
11
11
12
13
14
15
16
16
16
17
17
18
19
20
21
22
22
23
23
24
24
24
24
24
25
26
27
28
28
29
30
31
32
33
34
35
36
37
38
39
40
41
42
43
44
44
44
45
45
45
FIT
1:1
100%

Артикул

Название

Примечание

Количество

1

23D-43-33411

LEVER,ARTICULATE

SN: 5001-UP

1шт.

2

237-43-00100

KNOB ASS'Y,ARTICULATE

SN: 5001-UP

1шт.

|2

237-43-17490

KNOB

SN: 5001-UP

1шт.

|2

237-54-13260

PLATE¤ OPERATING

SN: 5001-UP

1шт.

3

23D-43-33621

LEVER,DRAWBAR SIDE SHIFT

SN: 5001-UP

1шт.

4

232-43-00123

KNOB ASS'Y,DRAWBAR SIDE SHIFT

SN: 5001-UP

1шт.

|4

237-43-17480

KNOB

SN: 5001-UP

1шт.

|4

232-43-18281

PLATE¤ OPERATING

SN: 5001-UP

1шт.

5

23D-43-33421

LEVER,CIRCLE REVERSE

SN: 5001-UP

1шт.

6

237-43-00230

KNOB ASS'Y,CIRCLE REVERSE

SN: 5001-UP

1шт.

|6

237-43-17480

KNOB

SN: 5001-UP

1шт.

|6

237-54-13251

PLATE¤ OPERATING

SN: 5001-UP

1шт.

7

23D-43-33431

LEVER,BLADE LIFT

SN: 5001-UP

1шт.

8

237-43-00081

KNOB ASS'Y,BLADE LIFT

SN: 5001-UP

1шт.

|8

237-43-17480

KNOB

SN: 5001-UP

1шт.

|8

237-54-13211

PLATE¤ OPERATING

SN: 5001-UP

1шт.

9

23D-43-33611

LEVER,SCARIFIER

SN: 5001-UP

1шт.

10

237-43-00091

KNOB ASS'Y,SCARIFIER

SN: 5001-UP

1шт.

|10

237-43-17480

KNOB

SN: 5001-UP

1шт.

|10

237-54-13271

PLATE¤ OPERATING

SN: 5001-UP

1шт.

11

237-43-17420

WASHER

SN: 5001-UP

8шт.

12

23A-43-18190

WASHER

SN: 5001-UP

1шт.

13

01435-00816

BOLT

SN: 5113-UP

1шт.

|13

01023-10816

SCREW

SN: 5001-5112

1шт.

14

237-43-17420

WASHER

SN: 5001-UP

2шт.

15

237-43-17420

WASHER

SN: 5113-UP

2шт.

|15

232-43-58380

SHIM¤ 0.2MM

SN: 5001-5112

6шт.

|15

232-43-58370

SHIM¤ 0.5MM

SN: 5001-5112

4шт.

16

23D-43-21360

ROD

SN: 5001-UP

3шт.

17

23D-43-33471

ROD

SN: 5001-UP

2шт.

18

04250-40847

END,ROD

SN: 5001-UP

5шт.

19

01580-10806

NUT

SN: 5001-UP

5шт.

20

04250-60847

END,ROD¤ L.H. THREAD

SN: 5001-UP

5шт.

21

01508-40805

NUT,L.H. THREAD

SN: 5001-UP

5шт.

22

235-43-18380

BOLT

SN: 5051-UP

10шт.

|22

235-43-18380

BOLT

SN: 5001-5050

5шт.

23

01580-10806

NUT

SN: 5001-UP

10шт.

24

04254-10823

SPACER

SN: 5001-UP

20шт.

25

23D-43-33260

BRACKET

SN: 5001-UP

1шт.

26

01435-01025

BOLT

SN: 5001-UP

2шт.

27

01643-31232

WASHER

SN: 5001-UP

2шт.

28

23D-43-33511

LEVER

SN: 5051-UP

5шт.

|28

23D-43-33510

LEVER

SN: 5001-5050

5шт.

|28

234-43-38440

BUSHING

SN: 5001-UP

1шт.

29

23D-43-33530

COLLAR

SN: 5001-UP

1шт.

30

23D-43-33280

SHAFT

SN: 5001-UP

1шт.

31

04025-00532

PIN,SPRING

SN: 5001-UP

1шт.

32

01643-51645

WASHER

SN: 5001-UP

1шт.

33

23D-43-33520

ROD

SN: 5001-UP

5шт.

34

04205-10618

PIN

SN: 5001-UP

5шт.

35

01641-20608

WASHER

SN: 5001-UP

5шт.

36

233-43-27750

PIN,SNAP

SN: 5001-UP

5шт.

37

04205-10520

PIN

SN: 5001-UP

5шт.

38

01640-20508

WASHER

SN: 5001-UP

5шт.

39

04052-10530

PIN,SNAP

SN: 5001-UP

5шт.

40

23D-43-33540

SPRING

SN: 5001-UP

5шт.

41

23D-43-33360

PLATE

SN: 5001-UP

1шт.

42

23D-43-33731

COVER

SN: 5001-UP

1шт.

43

23D-43-33713

COVER

SN: .-UP

1шт.

|43

23D-43-33712

COVER

SN: 5001-.

1шт.

44

01220-40816

SCREW

SN: 5001-UP

5шт.

45

01643-30823

WASHER

SN: 5001-UP

5шт.

Выбрано товаров: 62