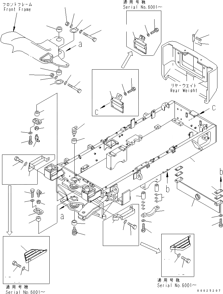
Запчасти Komatsu GD405A-3 ЗАДН. РАМА РАМА И ЧАСТИ КОРПУСА

Схема запчастей Komatsu GD405A-3 - ЗАДН. РАМА РАМА И ЧАСТИ КОРПУСА
1
2
3
4
5
6
7
7
8
8
9
9
10
10
11
11
12
12
13
13
13
13
14
14
15
15
16
16
17
17
18
18
19
19
20
21
22
23
24
25
25
26
26
27
27
28
29
30
31
31
31
31
32
32
32
32
33
33
33
33
FIT
1:1
100%

Артикул

Название

Примечание

Количество

1

23D-46-32103

FRAME ASS'Y,REAR

SN: 6001-UP

1шт.

|1

23D-46-32101

FRAME ASS'Y,REAR

SN: 5001-5999

1шт.

2

23A-46-12330

SPACER

SN: 5001-UP

4шт.

3

23A-46-12320

CAP

SN: 5001-UP

2шт.

4

23A-46-00110

SHIM ASS'Y

SN: 5001-UP

2шт.

|4

0

SHIM¤ 0.1MM

SN: 5001-UP

1шт.

|4

0

SHIM¤ 0.2MM

SN: 5001-UP

2шт.

|4

0

SHIM¤ 0.5MM

SN: 5001-UP

1шт.

5

01011-52765

BOLT

SN: 5001-UP

4шт.

6

01643-32780

WASHER

SN: 5001-UP

4шт.

7

232-46-53211

BUSHING

SN: 5001-UP

2шт.

8

236-46-13381

BUSHING

SN: 5001-UP

2шт.

9

236-46-13390

BUSHING

SN: 5001-UP

2шт.

10

236-46-13610

O-RING

SN: 5001-UP

4шт.

11

235-46-11710

BOLT

SN: 5001-UP

4шт.

12

01598-00608

NUT

SN: 5001-UP

4шт.

13

01640-20610

WASHER

SN: 5001-UP

8шт.

14

23A-46-11371

PIN

SN: 5001-UP

2шт.

15

236-46-13410

NUT

SN: 5001-UP

2шт.

16

23A-46-11380

PLATE

SN: 5001-UP

2шт.

17

01010-81630

BOLT

SN: 5001-UP

4шт.

18

01643-31645

WASHER

SN: 5001-UP

4шт.

19

07020-00900

FITTING,GREASE

SN: 5001-UP

2шт.

20

23D-22-31110

BRACKET

SN: 5001-UP

1шт.

21

23B-22-21320

PLATE

SN: 5001-UP

2шт.

22

23B-22-21330

PLATE

SN: 5001-UP

2шт.

23

01010-81650

BOLT

SN: 5001-UP

4шт.

24

01643-31645

WASHER

SN: 5001-UP

4шт.

25

23D-06-32222

BRACKET

SN: 6001-UP

1шт.

|25

23D-06-32221

BRACKET

SN: 5001-5999

1шт.

26

01010-81020

BOLT

SN: 5001-UP

2шт.

27

01643-31032

WASHER

SN: 5001-UP

2шт.

28

232-46-11711

PIN

SN: 5001-UP

1шт.

29

04025-01065

PIN,SPRING

SN: 5001-UP

1шт.

30

232-46-11920

PIN,SNAP

SN: 5001-UP

1шт.

31

23D-46-31451

STEP,L.H.

SN: 6001-UP

1шт.

|31

23D-46-31410

STEP,L.H.

SN: 5001-5999

1шт.

|31

23D-46-31461

STEP,R.H.

SN: 6001-UP

1шт.

|31

23D-46-31420

STEP,R.H.

SN: 5001-5999

1шт.

32

01010-81220

BOLT

SN: 5001-UP

4шт.

33

01643-31232

WASHER

SN: 5001-UP

4шт.

Выбрано товаров: 41