Запчасти Komatsu GD405A-3S СЦЕПНОЕ УСТРОЙСТВО (ДЛЯ 9 DEG. ГРУПП.) РАБОЧЕЕ ОБОРУДОВАНИЕ

Схема запчастей Komatsu GD405A-3S - СЦЕПНОЕ УСТРОЙСТВО (ДЛЯ 9 DEG. ГРУПП.) РАБОЧЕЕ ОБОРУДОВАНИЕ
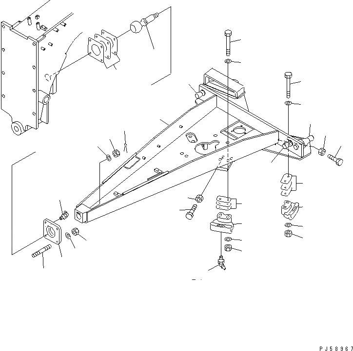
1
2
3
3
4
5
6
7
8
9
10
11
12
13
14
14
15
15
16
16
17
17
18
18
19
19
20
20
20
20
21
FIT
1:1
100%

Артикул

Название

Примечание

Количество

1

23D-70-35110

DRAWBAR

SN: 4701-UP

1шт.

2

233-70-24310

STUD,BALL (WELDED)

SN: 4701-UP

1шт.

3

232-70-11120

STUD,BALL (WELDED)

SN: 4701-UP

2шт.

4

233-70-11211

STUD,JOINT

SN: 4701-UP

1шт.

5

01590-13940

NUT

SN: 4701-UP

1шт.

6

237-70-21120

WASHER

SN: 4701-UP

1шт.

7

04050-16070

PIN,COTTER

SN: 4701-UP

1шт.

8

23D-70-11610

COVER

SN: 4701-UP

1шт.

9

07020-00675

FITTING,GREASE

SN: 4701-UP

1шт.

10

237-70-00020

SHIM KIT

SN: 4701-UP

1шт.

|10

0

SHIM¤ 0.5MM

SN: 4701-UP

6шт.

|10

0

SHIM¤ 1.0MM

SN: 4701-UP

3шт.

11

01124-52050

STUD

SN: 4701-UP

4шт.

12

01580-12016

NUT

SN: 4701-UP

4шт.

13

01643-32060

WASHER

SN: 4701-UP

4шт.

14

01016-52270

BOLT

SN: 4701-UP

8шт.

15

01580-12218

NUT

SN: 4701-UP

8шт.

16

23A-70-11240

GUIDE

SN: 4701-UP

4шт.

17

233-70-00120

SHIM ASS'Y

SN: 4701-UP

4шт.

|17

0

SHIM¤ 0.5MM

SN: 4701-UP

4шт.

|17

0

SHIM¤ 1.0MM

SN: 4701-UP

4шт.

18

01011-52435

BOLT

SN: 4701-UP

8шт.

19

01580-12419

NUT

SN: 4701-UP

8шт.

20

01643-32460

WASHER

SN: 4701-UP

16шт.

21

07020-00675

FITTING,GREASE

SN: 4701-UP

2шт.

Выбрано товаров: 0