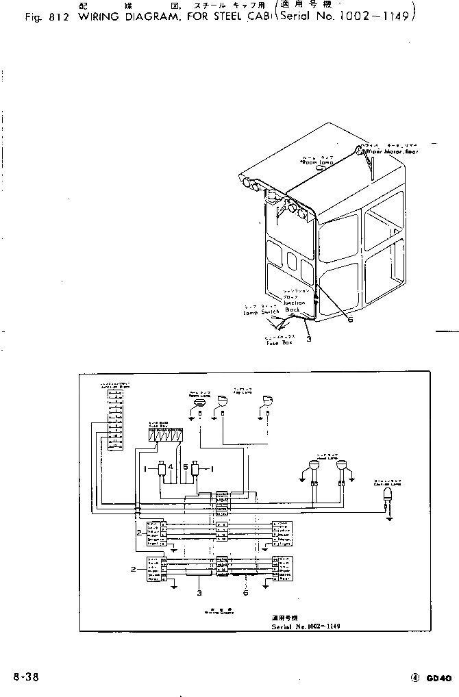
Запчасти Komatsu GD40HT-2 ЭЛЕКТРОПРОВОДКА DIAGRAM¤ ДЛЯ СТАЛЬНАЯ КАБИНА(№-9) ОПЦИОННЫЕ КОМПОНЕНТЫ

Схема запчастей Komatsu GD40HT-2 - ЭЛЕКТРОПРОВОДКА DIAGRAM¤ ДЛЯ СТАЛЬНАЯ КАБИНА(№-9) ОПЦИОННЫЕ КОМПОНЕНТЫ
FIT
1:1
100%

Артикул

Название

Примечание

Количество

|1

234-855-0012

STEEL CAB ASS'Y

SN: 1036-1149

1шт.

|1

234-855-0011

STEEL CAB ASS'Y

SN: 1028-1035

1шт.

|1

234-855-0010

STEEL CAB ASS'Y

SN: 1002-1027

1шт.

1

08060-00000

SWITCH,LAMP

SN: 1002-1149

2шт.

2

08182-00000

SWITCH,WIPER

SN: 1002-@

2шт.

3

234-855-1711

HARNESS

SN: 1002-1149

1шт.

4

234-855-1721

CABLE

SN: 1002-1149

1шт.

5

234-855-1731

CABLE

SN: 1002-1149

1шт.

6

234-855-1740

HARNESS

SN: 1002-1149

1шт.

Выбрано товаров: 9