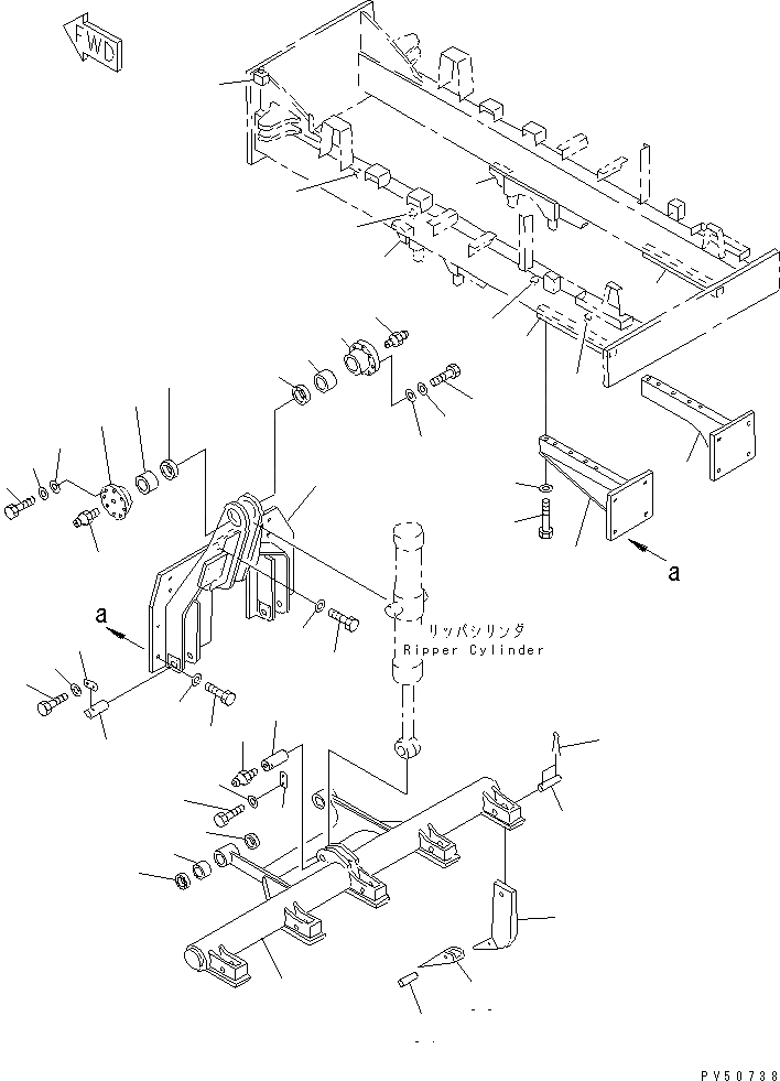
Запчасти Komatsu GD521A-1 ЗАДН. КРЕПЛЕНИЕ РЫХЛИТЕЛЬ РАБОЧЕЕ ОБОРУДОВАНИЕ

Схема запчастей Komatsu GD521A-1 - ЗАДН. КРЕПЛЕНИЕ РЫХЛИТЕЛЬ РАБОЧЕЕ ОБОРУДОВАНИЕ
1
2
3
3
4
5
6
7
8
9
10
10
11
11
12
12
13
13
14
14
15
15
16
16
17
18
19
20
21
22
23
24
25
26
27
28
29
30
31
32
33
34
34
35
35
36
36
36
36
37
FIT
1:1
100%

Артикул

Название

Примечание

Количество

1

238-785-1311

BRACKET

SN: 10001-UP

1шт.

2

232-785-1250

BUSHING

SN: 10001-UP

2шт.

3

232-785-1270

SEAL,DUST

SN: 10001-UP

4шт.

4

09241-50150

PIN

SN: 10001-UP

1шт.

5

07020-00000

FITTING,GREASE

SN: 10001-UP

1шт.

6

04082-00212

LOCK

SN: 10001-UP

1шт.

7

01010-51225

BOLT

SN: 10001-UP

2шт.

8

01643-31232

WASHER

SN: 10001-UP

2шт.

9

23A-785-1110

BRACKET

SN: 10001-UP

1шт.

10

23B-785-1250

SUPPORT

SN: 10001-UP

2шт.

11

23B-785-1260

BUSHING

SN: 10001-UP

2шт.

12

07145-00075

SEAL,DUST

SN: 10001-UP

2шт.

13

07020-00000

FITTING,GREASE

SN: 10001-UP

2шт.

14

01010-51240

BOLT

SN: 10001-UP

8шт.

15

01643-31232

WASHER

SN: 10001-UP

8шт.

16

01640-21223

WASHER

SN: 10001-UP

8шт.

17

23B-785-1280

PIN

SN: 10001-UP

2шт.

18

04082-00212

LOCK

SN: 10001-UP

2шт.

19

01010-51225

BOLT

SN: 10001-UP

4шт.

20

01643-31232

WASHER

SN: 10001-UP

4шт.

21

23A-785-1120

BRACKET,L.H.

SN: 10001-UP

1шт.

22

23A-785-1130

BRACKET,R.H.

SN: 10001-UP

1шт.

23

01011-52405

BOLT

SN: 10001-UP

10шт.

24

01643-32460

WASHER

SN: 10001-UP

10шт.

25

01010-52050

BOLT

SN: 10001-UP

4шт.

26

01643-32060

WASHER

SN: 10001-UP

4шт.

27

01010-52450

BOLT

SN: 10001-UP

12шт.

28

01643-32460

WASHER

SN: 10001-UP

12шт.

29

238-785-1321

SHANK

SN: 10001-UP

3шт.

30

113-78-21140

POINT

SN: 10001-UP

3шт.

31

113-78-21170

PIN

SN: 10001-UP

3шт.

32

238-785-1330

PIN

SN: 10001-UP

3шт.

33

04050-10070

PIN,COTTER

SN: 10001-UP

6шт.

34

23B-785-1110

SEAT (WELDED)

SN: 10001-UP

2шт.

35

23B-46-12550

PLATE (WELDED)

SN: 10001-UP

2шт.

36

01571-01016

SEAT (WELDED)

SN: 10001-UP

4шт.

37

23A-60-18240

BRACKET (WELDED)

SN: 10001-UP

1шт.

Выбрано товаров: 37