Запчасти Komatsu GD530A КАБИНА УСТАНОВКА SUPERSTRUCTURE

Схема запчастей Komatsu GD530A - КАБИНА УСТАНОВКА SUPERSTRUCTURE
10
5
10
10
4
9
5
8
7
11
6
4
9
8
3
4
7
2
6
8
1
4
7
6
3
2
1
FIT
1:1
100%

Артикул

Название

Примечание

Количество

|$0

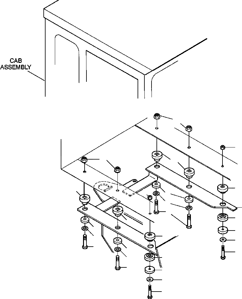
1251 973 H91

CAB INSTALLATION

1шт.

1

24 895 R1

BOLT

2шт.

2

25 538 R1

WASHER, FLAT

2шт.

3

112 434

WASHER, SPECIAL - ROPS

2шт.

4

113 985

MOUNT, RUBBER

4шт.

5

9413 983

NUT, LOCK

2шт.

6

26 720 R1

BOLT

4шт.

7

25 550 R1

WASHER, FLAT

4шт.

8

1244 349 H1

WASHER, SPECIAL - ROPS

4шт.

9

213 042 H1

MOUNT, RUBBER

4шт.

10

9414 002

NUT, LOCK

4шт.

11

FRAME (SEE PG 09-002)

-29шт.

11

FRAME (SEE PG 09-004)

-29шт.

11

FRAME (SEE PG 09-006)

-29шт.

11

FRAME (SEE PG 09-008)

-29шт.

11

FRAME (SEE PG 09-010)

-29шт.

11

FRAME (SEE PG 09-012)

-29шт.

|$19

-1шт.

|$18

F1 - NOT SERVICED. REFERENCE ONLY.

-1шт.

|$20

-1шт.

Выбрано товаров: 20