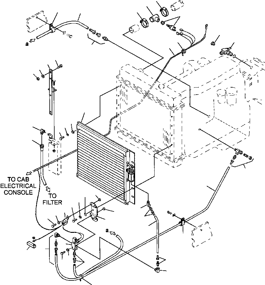
Запчасти Komatsu GD530A ЗАСЛОНКА РАДИАТОРА УСТАНОВКА ОХЛАЖД-Е

Схема запчастей Komatsu GD530A - ЗАСЛОНКА РАДИАТОРА УСТАНОВКА ОХЛАЖД-Е
2
3
2
8
28
1
7
5
6
4
28
17
16
18
19
13
11
15
20
14
21
28
28
10
11
15
14
26
27
11
10
9
25
22
25
8
24
28
29
11
25
28
12
23
5
FIT
1:1
100%

Артикул

Название

Примечание

Количество

|$0

1439 085 H91

RADIATOR SHUTTER

1шт.

1

ALARMSTAT (SEE PG 08-012)

-29шт.

|$2

83 019 H45

BUSHING

1шт.

2

681 209 C1

CLAMP, HOSE

2шт.

3

55 952

TEE, SHUTTER STAT

1шт.

4

WIRING HARNESS (SEE PG 08-012)

-29шт.

5

935 522 C1

STRAP, TIE

8шт.

6

141 802

TEE

1шт.

7

1437 000 H1

ADAPTER

1шт.

8

299 407 C1

CLAMP

2шт.

9

25 222 R1

BOLT

1шт.

10

25 519 R1

NUT

3шт.

11

25 532 R1

WASHER

14шт.

12

25 489 R1

BOLT

2шт.

13

SHUTTER ASSEMBLY (SEE PG 06-018)

-29шт.

14

180 075

BOLT

10шт.

15

120 214

WASHER

10шт.

16

1439 055 H91

MOUNTING BRACKET, COOLER

1шт.

17

24 840 R1

BOLT

2шт.

18

25 544 R1

WASHER

2шт.

19

25 522 R1

NUT

2шт.

20

9410 282

ELBOW

1шт.

21

1430 794 H1

HOSE ASSEMBLY

1шт.

22

1432 208 H1

BRACKET

1шт.

23

444 040

ELBOW

1шт.

24

SOLENOID VALVE, 3-WAY (SEE PG 08-012)

-29шт.

25

161 406

HOSE - 8 IN

1шт.

|$27

151 416

ADAPTER

1шт.

|$28

96 024

CONNECTOR

2шт.

|$29

51 730

ADAPTER

1шт.

26

RELAY (SEE PG 08-012)

-29шт.

27

9409 927

ELBOW

1шт.

28

102 236

HOSE - 60 IN

1шт.

|$33

110 660

HOSE - 60 IN

1шт.

|$34

96 024

CONNECTOR

4шт.

|$35

9402 823

ELBOW

1шт.

|$36

51 730

ADAPTER

2шт.

|$37

417-01-A1650

ADAPTER

1шт.

|$38

143 142 H1

CLAMP, CLOSED

1шт.

|$39

151 416

ADAPTER

1шт.

|$40

9403 529

NUT

1шт.

|$41

9403 401

REDUCER

1шт.

|$42

1237 684 H1

ADAPTER

1шт.

29

CIRCUIT BREAKER, 5 AMP (SEE PG 08-012)

-29шт.

Выбрано товаров: 44