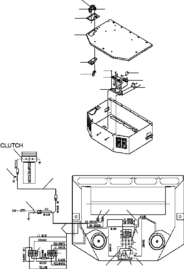
Запчасти Komatsu GD530A КОНДИЦ. ВОЗДУХА/ОБОГРЕВАТЕЛЬ. ЭЛЕКТР. ЭЛЕКТРОПРОВОДКА ЭЛЕКТР.

Схема запчастей Komatsu GD530A - КОНДИЦ. ВОЗДУХА/ОБОГРЕВАТЕЛЬ. ЭЛЕКТР. ЭЛЕКТРОПРОВОДКА ЭЛЕКТР.
1
7
2
3
4
5
13
8
6
12
11
9
10
23
22
21
20
19
9
14
18
11
8
15
16
12
17
FIT
1:1
100%

Артикул

Название

Примечание

Количество

|$0

BOX ASSEMBLY, AIR CONDITIONER/HEATER (SEE PG 13-138)

-1шт.

|$2

BOX ASSEMBLY, AIR CONDITIONER/HEATER (SEE PG 13-140)

-1шт.

1

1434 954 H1

SWITCH, AC/HEATER MASTER

1шт.

2

1434 955 H1

SWITCH, AC/HEATER FAN

1шт.

3

1434 956 H1

DECAL - TEMPERATURE

1шт.

4

COVER (SEE PG 13-126)

-29шт.

4

COVER (SEE PG 13-128)

-29шт.

4

COVER (SEE PG 13-138)

-29шт.

4

COVER (SEE PG 13-140)

-29шт.

5

1434 947 H1

PANEL WELDMENT, CONTROL

1шт.

|$12

1437 231 H91

CONTROL, HEAT VALVE CABLE

1шт.

|$13

NSS

CABLE

1шт.

6

1437 232 H1

CONTROL, HEAT VALVE

1шт.

7

4187 42A 490

KNOB, TEMPERATURE CONTROL

1шт.

8

1431 251 H1

DIODE ASSEMBLY

1шт.

9

4259 63A B50

SWITCH, PRESET THERMOSTAT - AC ONLY

1шт.

10

1434 960 H1

BRACKET WELDMENT, RESISTOR

1шт.

11

1432 898 H1

BLOCK, CONNECTOR - 4 CIRCUIT

1шт.

12

1432 897 H1

RESISTOR ASSEMBLY

2шт.

13

24 377 R1

BOLT

4шт.

14

1435 669 H1

HARNESS, AIR CONDITIONER/HEATER WIRING

1шт.

15

1435 670 H1

JUMPER, YELLOW

1шт.

16

1435 671 H1

JUMPER, LIGHT BLUE

1шт.

17

1435 672 H1

JUMPER, ORANGE

1шт.

18

1435 673 H1

JUMPER, BLACK

1шт.

19

SWITCH, HIGH PRESSURE (SEE PG 13-138)

-29шт.

|$41

OR

-1шт.

19

SWITCH, HIGH PRESSURE (SEE PG 13-140)

-29шт.

20

SWITCH, LOW PRESSURE (SEE PG 13-138)

-29шт.

|$39

OR

-1шт.

20

SWITCH, LOW PRESSURE (SEE PG 13-140)

-29шт.

21

HARNESS, SWITCH PANEL WIRING (SEE PG 13-140)

-29шт.

22

HARNESS, MAIN WIRING (SEE PG 08-002)

-29шт.

23

1437 616 H1

DIODE ASSEMBLY

1шт.

N/I

140 601

CONNECTOR

1шт.

|$40

-1шт.

|$37

F1 - REFER TO PARTS AND SERVICE NEWS AA97179 AND AA180B FOR

-1шт.

|$38

RECOMMENDED GROUND CABLE.

-1шт.

Выбрано товаров: 38