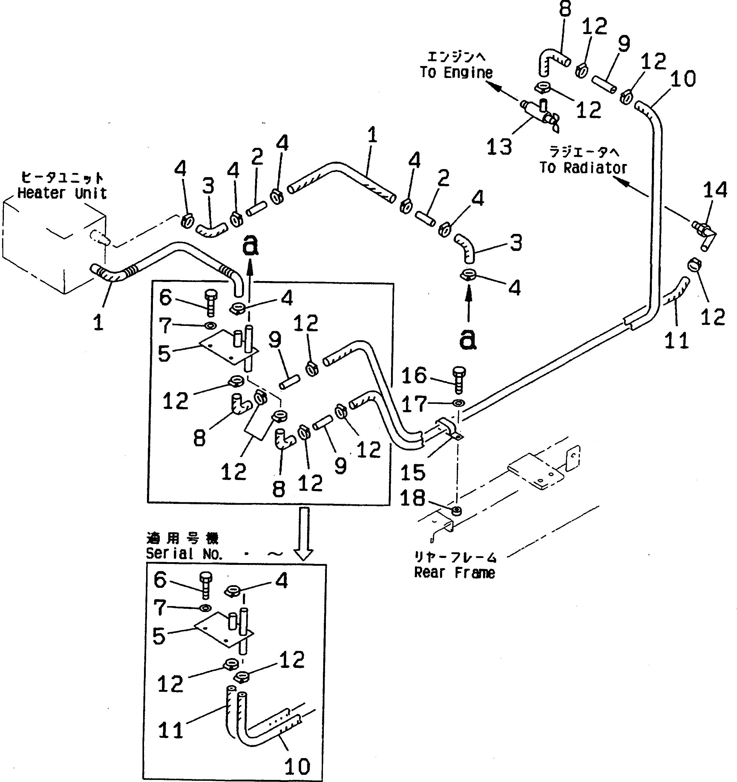
Запчасти Komatsu GD605A-5 ОБОГРЕВАТЕЛЬ. (/) (ВОДН. ГИДРОЛИНИЯ)(№-) РАМА И ЧАСТИ КОРПУСА

Схема запчастей Komatsu GD605A-5 - ОБОГРЕВАТЕЛЬ. (/) (ВОДН. ГИДРОЛИНИЯ)(№-) РАМА И ЧАСТИ КОРПУСА
FIT
1:1
100%

Артикул

Название

Примечание

Количество

1

09483-00505

HOSE

SN: 1501-1600

2шт.

2

09484-00560

CONNECTOR

SN: 1501-1600

4шт.

3

09483-20550

HOSE

SN: 1501-1600

4шт.

4

07280-02523

CLAMP

SN: .-1600

12шт.

|4

07281-00259

CLAMP

SN: 1501-.

12шт.

5

23B-807-1250

JOINT

SN: 1501-1600

1шт.

6

01010-51225

BOLT

SN: 1501-@

2шт.

7

01643-31232

WASHER

SN: 1501-@

2шт.

8

09483-20550

HOSE

SN: .-@

1шт.

|8

09483-20550

HOSE

SN: 1501-.

3шт.

9

09484-00560

CONNECTOR

SN: .-@

1шт.

|9

09484-00560

CONNECTOR

SN: 1501-.

3шт.

10

09483-00525

HOSE

SN: 1501-@

1шт.

11

09483-00523

HOSE

SN: 1501-@

1шт.

12

07280-02523

CLAMP

SN: ..-@

6шт.

|12

07281-00259

CLAMP

SN: .-..

6шт.

|12

07281-00259

CLAMP

SN: 1501-.

10шт.

13

09482-10000

VALVE

SN: 1501-@

1шт.

14

23B-807-1120

VALVE

SN: 1501-@

1шт.

15

232-817-1140

CLIP

SN: 1501-1600

1шт.

16

01010-51016

BOLT

SN: 1501-1600

1шт.

17

01643-31032

WASHER

SN: 1501-1600

1шт.

18

01571-01016

SEAT (WELDED)

SN: 1501-1600

1шт.

Выбрано товаров: 23