Запчасти Komatsu GD605A-5S ГИДРАВЛ РЫЧАГ УПРАВЛ-Я (ДЛЯ НАКЛОНЯЕМ.)(№-) СИСТЕМА УПРАВЛЕНИЯ

Схема запчастей Komatsu GD605A-5S - ГИДРАВЛ РЫЧАГ УПРАВЛ-Я (ДЛЯ НАКЛОНЯЕМ.)(№-) СИСТЕМА УПРАВЛЕНИЯ
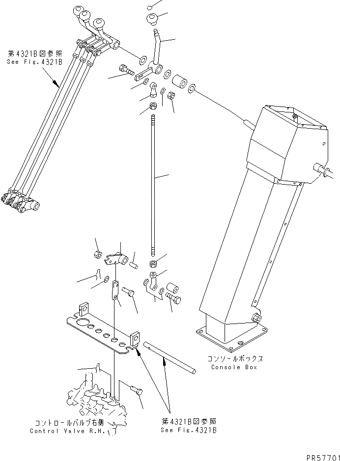
1
2
3
4
5
6
7
8
8
9
9
9
10
10
11
12
13
14
15
16
17
18
19
FIT
1:1
100%

Артикул

Название

Примечание

Количество

1

23B-43-18991

LEVER

SN: 4630-UP

1шт.

2

237-43-17480

KNOB

SN: 4001-UP

1шт.

3

23A-43-18711

ROD

SN: 4630-UP

1шт.

4

04250-40847

END,ROD

SN: 4501-UP

1шт.

5

01580-10806

NUT

SN: 4001-UP

1шт.

6

04250-60847

END,ROD¤ L.H. THREAD

SN: 4501-UP

1шт.

7

01508-40805

NUT,L.H. THREAD

SN: 4501-UP

1шт.

8

235-43-18380

BOLT

SN: 4501-UP

2шт.

9

04254-10823

SPACER

SN: 4501-UP

4шт.

10

01580-10806

NUT

SN: 4501-UP

2шт.

11

23D-43-21870

LEVER

SN: 4630-UP

1шт.

12

234-43-38440

BUSHING

SN: 4630-UP

1шт.

13

23D-43-21371

ROD

SN: 4630-UP

1шт.

14

04205-10618

PIN

SN: 4001-UP

1шт.

15

01641-20608

WASHER

SN: 4001-UP

1шт.

16

04050-11212

PIN,COTTER

SN: 4630-UP

1шт.

17

235-43-18441

PIN

SN: 4630-UP

1шт.

18

04050-11212

PIN,COTTER

SN: 4630-UP

1шт.

19

232-735-1340

PLATE¤ OPERATING

SN: 4501-UP

1шт.

Выбрано товаров: 19