Запчасти Komatsu GD605A-5S КАБИНА ОПЕРАТОРА (/) (ПАНЕЛЬ УПРАВЛ-Я И ПОЛ МАТЕРИАЛ)(№-) РАМА И ЧАСТИ КОРПУСА

Схема запчастей Komatsu GD605A-5S - КАБИНА ОПЕРАТОРА (/) (ПАНЕЛЬ УПРАВЛ-Я И ПОЛ МАТЕРИАЛ)(№-) РАМА И ЧАСТИ КОРПУСА
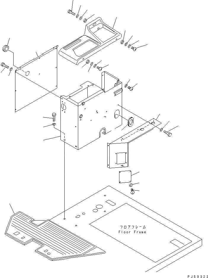
1
2
3
4
5
6
6
7
7
8
9
10
11
12
13
14
15
16
16
16
17
17
17
18
18
18
19
20
21
22
FIT
1:1
100%

Артикул

Название

Примечание

Количество

1

23D-45-11410

BOX

SN: 4630-UP

1шт.

2

01010-51230

BOLT

SN: 4630-UP

4шт.

3

01643-31232

WASHER

SN: 4001-UP

4шт.

4

23D-45-11430

COVER

SN: 4630-UP

1шт.

5

23D-45-11420

COVER

SN: 4630-UP

1шт.

6

01010-50612

BOLT

SN: 4630-UP

13шт.

7

01643-30623

WASHER

SN: 4630-UP

13шт.

8

23B-54-12670

PLATE

SN: 4630-UP

1шт.

9

01220-40612

SCREW

SN: 4630-UP

4шт.

10

01643-30623

WASHER

SN: 4630-UP

4шт.

11

203-54-64160

GROMMET

SN: 4630-UP

1шт.

12

23B-54-12221

COVER

SN: 4030-UP

1шт.

13

01010-50630

BOLT

SN: 4030-UP

2шт.

14

01220-40625

SCREW

SN: 4630-UP

1шт.

15

01220-40630

SCREW

SN: 4001-UP

1шт.

16

01642-20608

WASHER

SN: 4047-UP

4шт.

17

01643-30823

WASHER

SN: 4047-UP

4шт.

18

23D-54-21310

SEAT

SN: 4047-UP

4шт.

19

01220-40620

SCREW

SN: 4001-UP

6шт.

20

01643-30623

WASHER

SN: 4001-UP

6шт.

21

09415-03620

CAP

SN: 4630-UP

1шт.

22

23A-54-26161

MAT,FLOOR

SN: 4560-UP

1шт.

Выбрано товаров: 22