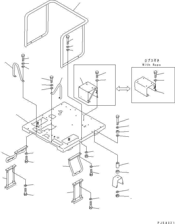
Запчасти Komatsu GD621A-1 КАБИНА ОПЕРАТОРА РАМА И ЧАСТИ КОРПУСА

Схема запчастей Komatsu GD621A-1 - КАБИНА ОПЕРАТОРА РАМА И ЧАСТИ КОРПУСА
1
2
3
4
5
6
7
8
9
10
10
11
12
12
13
13
14
15
15
16
16
17
17
18
18
19
19
20
20
21
21
22
22
23
23
24
25
26
27
27
28
FIT
1:1
100%

Артикул

Название

Примечание

Количество

1

23B-54-11110

FRAME

SN: 10001-UP

1шт.

2

01010-51690

BOLT

SN: 10001-UP

4шт.

3

234-54-11480

PLATE

SN: 10001-UP

4шт.

4

23A-54-11180

CUSHION

SN: 10001-UP

4шт.

5

238-54-11150

WASHER

SN: 10001-UP

4шт.

6

234-54-11470

COLLAR

SN: 10001-UP

4шт.

7

23A-54-11170

CUSHION

SN: 10001-UP

4шт.

8

01643-31645

WASHER

SN: 10001-UP

4шт.

9

01580-11613

NUT

SN: 10001-UP

4шт.

10

23B-54-11360

BRACKET

SN: 10001-UP

1шт.

10

23B-957-1480

BRACKET,(WITH ROPS)

SN: 10001-UP

1шт.

11

23A-54-11120

STEP

SN: 10001-UP

1шт.

12

01010-51230

BOLT

SN: 10001-UP

4шт.

13

01643-31232

WASHER

SN: 10001-UP

4шт.

14

23A-54-11130

STEP

SN: 10001-UP

1шт.

15

233-54-21311

STEP,WIRE

SN: 10001-UP

2шт.

16

01010-51040

BOLT

SN: 10001-UP

4шт.

17

01643-31032

WASHER

SN: 10001-UP

4шт.

18

01010-51225

BOLT

SN: 10001-UP

4шт.

18

01010-51235

BOLT,(WITH ROPS)

SN: 10001-UP

4шт.

19

01643-31232

WASHER

SN: 10001-UP

4шт.

20

23A-54-11350

GUARD

SN: 10001-UP

2шт.

21

01010-51225

BOLT

SN: 10001-UP

4шт.

22

01643-31232

WASHER

SN: 10001-UP

4шт.

23

01643-31232

WASHER

SN: 10001-UP

4шт.

24

23A-54-11310

GUARD

SN: 10001-UP

1шт.

25

01010-51260

BOLT

SN: 10001-UP

4шт.

26

01643-31232

WASHER

SN: 10001-UP

4шт.

27

01643-31232

WASHER

SN: 10001-UP

8шт.

28

01580-11210

NUT

SN: 10001-UP

4шт.

Выбрано товаров: 30