Запчасти Komatsu GD623A-1 КАБИНА ОПЕРАТОРА (/) РАМА И ЧАСТИ КОРПУСА

Схема запчастей Komatsu GD623A-1 - КАБИНА ОПЕРАТОРА (/) РАМА И ЧАСТИ КОРПУСА
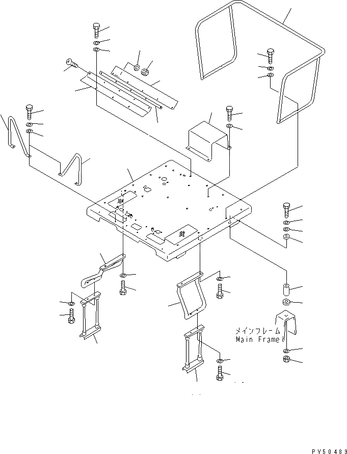
1
2
3
4
5
6
7
8
9
10
11
12
13
14
15
15
16
16
17
17
18
18
19
19
20
20
21
22
23
24
25
26
27
28
29
30
31
32
33
34
35
36
FIT
1:1
100%

Артикул

Название

Примечание

Количество

1

23B-54-11111

FRAME

SN: 30227-UP

1шт.

1

23B-54-11110

FRAME

SN: 30001-30226

1шт.

2

01010-51690

BOLT

SN: 30001-UP

4шт.

3

234-54-11480

PLATE

SN: 30001-UP

4шт.

4

23A-54-11170

CUSHION

SN: 30001-UP

4шт.

5

238-54-11150

WASHER

SN: 30001-UP

4шт.

6

234-54-11470

COLLAR

SN: 30001-UP

4шт.

7

23A-54-11180

CUSHION

SN: 30001-UP

4шт.

8

01643-31645

WASHER

SN: 30001-UP

4шт.

9

01580-11613

NUT

SN: 30001-UP

4шт.

10

23A-54-11140

BRACKET

SN: 30001-UP

1шт.

11

01010-51225

BOLT

SN: 30001-UP

4шт.

12

01643-31232

WASHER

SN: 30001-UP

4шт.

13

23A-54-11130

STEP,L.H.

SN: 30001-UP

1шт.

14

23A-54-11120

STEP,R.H.

SN: 30001-UP

1шт.

15

01010-51230

BOLT

SN: 30001-UP

4шт.

16

01643-31232

WASHER

SN: 30001-UP

4шт.

17

233-54-21311

STEP,WIRE

SN: 30001-UP

2шт.

18

01010-51040

BOLT

SN: 30001-UP

4шт.

19

01643-31032

WASHER

SN: 30001-UP

4шт.

20

23A-54-11350

GUARD

SN: 30001-UP

2шт.

21

01643-31232

WASHER

SN: 30001-UP

4шт.

22

01643-31232

WASHER

SN: 30001-UP

4шт.

23

01010-51225

BOLT

SN: 30001-UP

4шт.

24

23A-54-11310

GUARD

SN: 30001-UP

1шт.

25

01643-31232

WASHER

SN: 30001-UP

4шт.

26

01602-21236

WASHER

SN: 30001-UP

4шт.

27

01010-51260

BOLT

SN: 30001-UP

4шт.

28

23B-54-11270

BRACKET

SN: 30001-UP

1шт.

29

01010-51225

BOLT

SN: 30001-UP

3шт.

30

01643-31232

WASHER

SN: 30001-UP

3шт.

31

01643-31232

WASHER

SN: 30001-UP

3шт.

32

23B-54-11280

RUBBER

SN: 30001-UP

1шт.

33

23B-54-11290

PLATE

SN: 30001-UP

1шт.

34

01220-40616

SCREW

SN: 30001-UP

5шт.

35

01643-30623

WASHER

SN: 30001-UP

5шт.

36

01580-10605

NUT

SN: 30001-UP

5шт.

Выбрано товаров: 37