Запчасти Komatsu GD625A-1 ПЕРЕДН. ОТВАЛ (ОТВАЛ И ЭЛЕМЕНТЫ КРЕПЛЕНИЯ)(№-) РАБОЧЕЕ ОБОРУДОВАНИЕ

Схема запчастей Komatsu GD625A-1 - ПЕРЕДН. ОТВАЛ (ОТВАЛ И ЭЛЕМЕНТЫ КРЕПЛЕНИЯ)(№-) РАБОЧЕЕ ОБОРУДОВАНИЕ
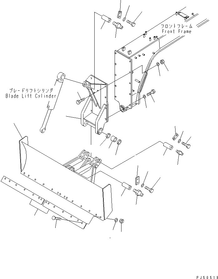
1
2
3
4
5
6
6
7
7
8
8
9
9
10
10
11
12
13
13
14
15
16
17
18
19
19
20
21
21
FIT
1:1
100%

Артикул

Название

Примечание

Количество

G1

0

FRONT BLADE GROUP

SN: 60001-60146

1шт.

|$$2

====================

-1шт.

1

232-725-1310

BLADE

SN: 60001-60146

1шт.

2

233-971-5120

EDGE

SN: 60001-60146

2шт.

3

232-70-12450

BOLT

SN: 60001-60146

14шт.

4

232-70-12480

NUT

SN: 60001-60146

14шт.

5

01643-31645

WASHER

SN: 60001-60146

14шт.

6

09241-50140

PIN

SN: 60001-60146

3шт.

7

07020-00000

FITTING,GREASE

SN: 60001-60146

3шт.

8

04082-00212

LOCK

SN: 60001-60146

3шт.

9

01010-51225

BOLT

SN: 60001-60146

6шт.

10

01602-21236

WASHER

SN: 60001-60146

6шт.

|$$13

====================

-1шт.

G2

0

BRACKET A GROUP

SN: 60001-60146

1шт.

|$$15

====================

-1шт.

11

232-725-1320

BRACKET

SN: 60001-60146

1шт.

12

07143-10505

BUSHING

SN: 60001-60146

2шт.

13

07145-00050

SEAL,DUST

SN: 60001-60146

4шт.

14

09241-50140

PIN

SN: 60001-60146

1шт.

15

07020-00000

FITTING,GREASE

SN: 60001-60146

1шт.

16

04082-00212

LOCK

SN: 60001-60146

1шт.

17

01010-51225

BOLT

SN: 60001-60146

2шт.

18

01643-31232

WASHER

SN: 60001-60146

2шт.

|$$24

====================

-1шт.

G3

0

BRACKET B GROUP

SN: 60001-60146

1шт.

|$$26

====================

-1шт.

19

01011-52440

BOLT

SN: 60001-60146

8шт.

20

01580-12419

NUT

SN: 60001-60146

4шт.

21

01643-32460

WASHER

SN: 60001-60146

8шт.

|$$30

====================

-1шт.

Выбрано товаров: 30