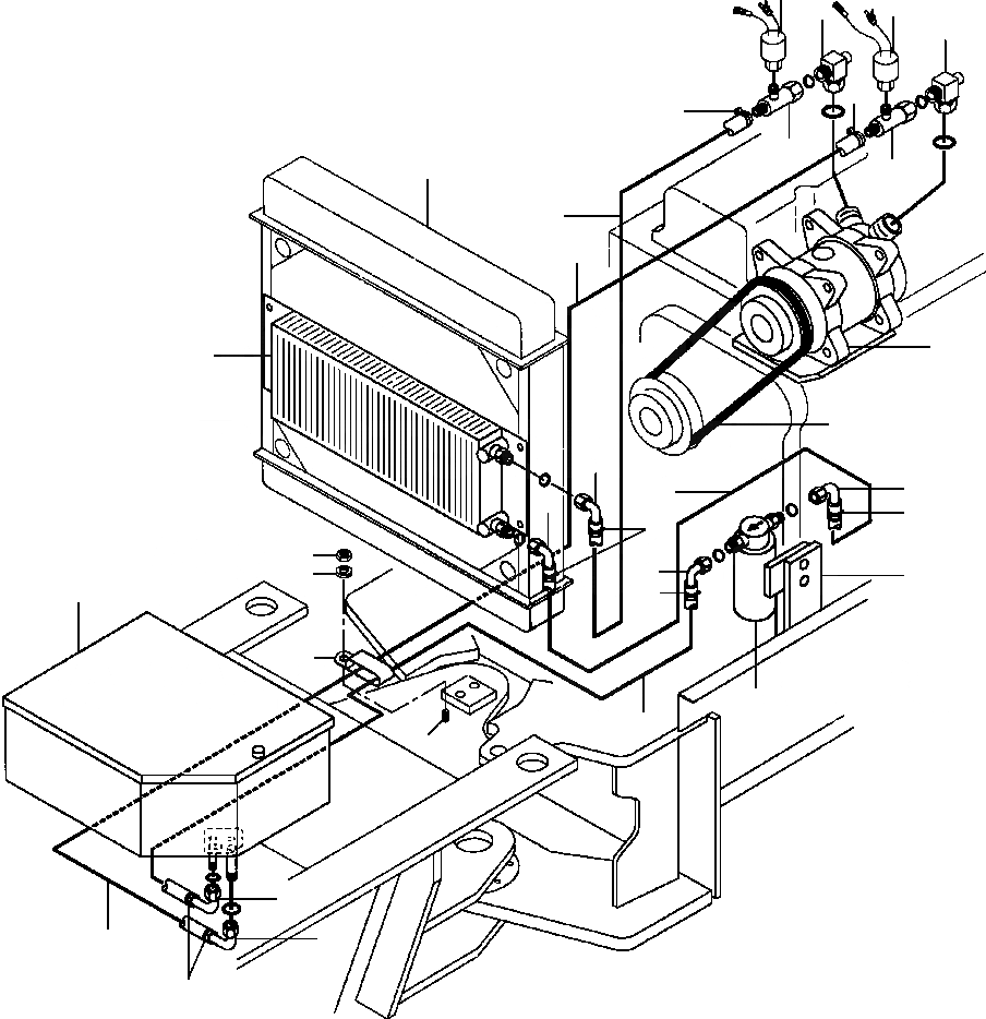
Запчасти Komatsu GD650A-1 КОНДИЦ. ВОЗДУХА ЛИНИИ SUPERSTRUCTURE

Схема запчастей Komatsu GD650A-1 - КОНДИЦ. ВОЗДУХА ЛИНИИ SUPERSTRUCTURE
7
4
5
2
17
8
6
26
3
9
1
20
11
27
10
12
13
12
8
8
24
16
23
14
25
17
22
15
18
21
16
19
20
17
FIT
1:1
100%

Артикул

Название

Примечание

Количество

1

COMPRESSOR MOUNTING (SEE PG 13-084)

-29шт.

|$1

1431 393 H91

KIT, COMPRESSOR FITTING

1шт.

2

1432 108 H1

FITTING, SPECIAL

1шт.

|$3

1432 109 H1

O-RING

1шт.

3

1432 113 H1

FITTING WITH PORT

1шт.

|$5

371 544 R1

O-RING

1шт.

4

1432 111 H1

SWITCH, LOW PRESSURE

1шт.

5

1432 107 H1

FITTING, SPECIAL

1шт.

|$8

1432 109 H1

O-RING

1шт.

6

1432 112 H1

FITTING WITH PORT

1шт.

|$10

357 271 R1

O-RING

1шт.

7

1432 110 H1

SWITCH, HIGH PRESSURE

1шт.

|$12

1431 390 H91

KIT, CONDENSOR HOSE & COIL

1шт.

8

122 316 R91

CLAMP, HOSE

4шт.

9

1431 744 H1

HOSE - 13/32 X 5 FT

1шт.

10

1431 749 H1

FITTING, HOSE

1шт.

|$16

357 271 R1

O-RING

1шт.

11

1431 742 H1

COIL, CONDENSER

1шт.

12

1431 738 H1

FITTING, HOSE

2шт.

|$19

359 158 R1

O-RING

1шт.

13

1431 740 H1

HOSE - 5/16 X 6 FT

1шт.

14

1431 745 H1

BRACKET, DRIER/RECEIVER MOUNTING

1шт.

|$22

1431 748 H1

BOLT

6шт.

|$23

120 393

WASHER, FLAT

4шт.

|$24

120 214

WASHER, LOCK

6шт.

|$25

120 376

NUT, HEX

2шт.

15

1431 743 H1

DRIER/RECEIVER

1шт.

|$27

306 132 C2

STRAP, TIE

8шт.

|$28

935 522 C1

STRAP, TIE

8шт.

|$29

1431 389 H91

KIT, HOSE

1шт.

16

1431 738 H1

FITTING, HOSE

2шт.

|$31

359 158 R1

O-RING

2шт.

17

122 316 R91

CLAMP, HOSE

4шт.

18

1431 740 H1

HOSE - 5/16 X 6 FT

1шт.

19

1431 739 H1

FITTING, HOSE

1шт.

|$35

371 544 R1

O-RING

1шт.

20

1431 741 H1

HOSE - 1/2 X 8 FT

1шт.

21

105 899

STUD, WELD

1шт.

22

651 569 C1

CLAMP

1шт.

23

25 553 R1

WASHER, FLAT

1шт.

24

17 044 R1

NUT, HEX

1шт.

N/I

1431 377 H1

SLEEVE, HOSE WRAP - 20 IN

1шт.

N/I

1431 737 H1

FITTING, EVAPORATOR DRAIN

2шт.

25

EVAPORATOR, AIR CONDITIONER (SEE PG 13-082)

-29шт.

26

RADIATOR (SEE PG 06-008)

-29шт.

27

BELT, COMPRESSOR DRIVE (SEE PG 13-084)

-29шт.

|$49

-1шт.

|$47

F1 - WRAP HOSES TOGETHER WITH BULK HOSE WRAP

-1шт.

|$48

1431 377 H1 CUT TO LENGTH

-1шт.

Выбрано товаров: 49