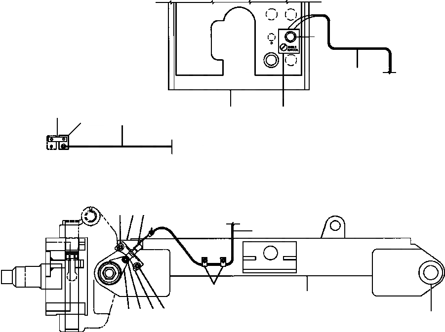
Запчасти Komatsu GD650A-2CY FIG. E-A КОЛЕСА LEAN ИНДИКАТОР ЭЛЕКТРИКА

Схема запчастей Komatsu GD650A-2CY - FIG. E-A КОЛЕСА LEAN ИНДИКАТОР ЭЛЕКТРИКА
4
14
3
1
16
2
14
14
13
15
9
8
7
6
5
10
11
12
FIT
1:1
100%

Артикул

Название

Примечание

Количество

1

1106 459 C1

BAR, BUSS - 2 HOLE

1шт.

2

1432 613 H1

BREAKER, CIRCUIT - 4 AMP

1шт.

3

1437 035 H1

DECAL - WHEELS VERTICAL

1шт.

4

1270 237 H91

LIGHT, WHEELS VERTICAL - GREEN

1шт.

|$4

1437 047 H1

LAMP, LED GREEN

1шт.

5

24 605 R1

WASHER, FLAT

1шт.

6

1437 036 H91

BRACKET WELDMENT

1шт.

7

60 365 H

BOLT

1шт.

|$8

78 239

WASHER, SPECIAL

2шт.

|$9

80 876

BEARING

1шт.

8

1437 197 H1

BRACKET, SWITCH

1шт.

9

105 899

STUD, WELD

1шт.

|$12

25 553 R1

WASHER, FLAT

1шт.

|$13

25 522 R1

NUT, HEX

1шт.

10

140 483 H

BOLT

1шт.

|$15

25 544 R1

WASHER, FLAT

1шт.

|$16

25 553 R1

WASHER, FLAT

1шт.

|$17

25 522 R1

NUT, HEX

1шт.

11

1437 318 H1

PLATE, MOUNTING

1шт.

12

1435 117 H1

SWITCH, WHEELS VERTICAL

1шт.

13

299 405 C1

CLAMP

2шт.

|$21

65 572

STUD, WELD

2шт.

|$22

25 519 R1

NUT, HEX

2шт.

14

1437 023 H91

WIRING HARNESS, HI/LO BEAM LIGHTS

1шт.

15

AXLE, FRONT (SEE FIG. S5230-02A0)

1шт.

16

PANEL ASSEMBLY, INSTRUMENT (SEE FIG. E5260-01A1)

1шт.

Выбрано товаров: 0