Запчасти Komatsu GD650A FLASHING LIGHT AMBER ЭЛЕКТР.

Схема запчастей Komatsu GD650A - FLASHING LIGHT AMBER ЭЛЕКТР.
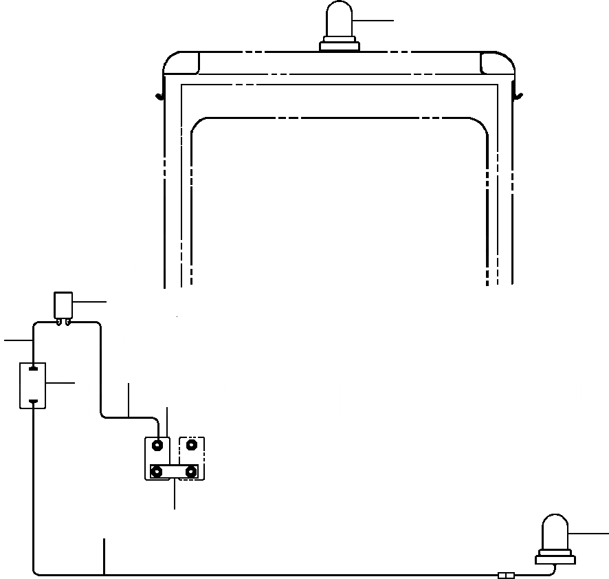
1
5
4
6
3
7
8
2
1
FIT
1:1
100%

Артикул

Название

Примечание

Количество

|$0

1434 005 H91

LIGHT INSTALLATION, FLASHING

1шт.

1

1260 332 H91

LIGHT, 360° FLASHING

1шт.

|$2

140 711

GROMMET - UNDER LIGHT THRU CAB

1шт.

|$3

1232 251 H1

SEALANT, SILICONE RUBBER

-2шт.

|$4

159 952

SCREW, PAN HEAD

3шт.

|$5

120 391

WASHER, FLAT

3шт.

|$6

120 361

NUT, HEX

3шт.

2

WIRE 47 IN CAB HARNESS

-1шт.

3

282 437 R91

SWITCH, FLASHING LIGHT

1шт.

4

1283 357 H1

CABLE - FLASHER TO SWITCH

1шт.

5

929 706 C1

FLASHER

1шт.

|$11

160 035

SCREW, PAN HEAD

2шт.

|$12

120 217

WASHER, LOCK

2шт.

|$13

120 614

NUT, HEX

2шт.

6

1160 585 H1

CABLE - BREAKER TO FLASHER

1шт.

7

714 249 C1

BREAKER, CIRCUIT - 15 AMP

1шт.

8

1106 459 H1

BAR, BUSS

1шт.

Выбрано товаров: 17