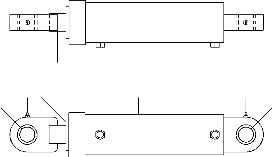
Запчасти Komatsu GD650A DOZER ЦИЛИНДР ОТВАЛА ГИДРАВЛS

Схема запчастей Komatsu GD650A - DOZER ЦИЛИНДР ОТВАЛА ГИДРАВЛS
2
3
1
6
4
6
5
5
FIT
1:1
100%

Артикул

Название

Примечание

Количество

|$0

1433 637 H91

CYLINDER, DOZER BLADE

1шт.

1

1433 638 H1

BARREL WELDMENT

1шт.

2

1433 643 H1

NUT, CYLINDER

1шт.

|$3

1433 644 H1

SCREW, SET

1шт.

3

1433 639 H1

SHAFT WELDMENT

1шт.

|$5

1433 641 H1

PISTON

1шт.

|$6

1433 642 H1

BOLT

1шт.

|$7

1433 645 H1

KIT, SEAL

1шт.

4

1433 640 H1

GLAND, PACKING

1шт.

5

1433 646 H1

BUSHING

2шт.

6

109 461

FITTING, LUBE

2шт.

Выбрано товаров: 11