Качественные детали и логистика
Оригинальные и аналоговые запчасти с доставкой по России, Казахстану и Беларуси
©2022 PartSell ООО "Система" ИНН 2463123282 ОГРН 1212400004838
Центральный офис: г. Красноярск, Академика Киренского, д.87, пом.4
Телефон: 8 (800) 777-65-74 Email: zakaz@partsell.ru
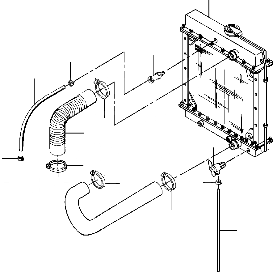
СИСТЕМА ОХЛАЖДЕНИЯ
№
Артикул
Название
Примечание
Количество
1
RADIATOR/OIL COOLER (SEE PG 06-006)
-29шт.
2
176 057 H1
FITTING, HOSE
1шт.
3
279 025 R91
CLAMP, HOSE
2шт.
4
364 357 C1
HOSE - 28 IN
5
1435 168 H1
HOSE, UPPER RADIATOR
6
681 209 C1
7
27 725 R1
8
1435 169 H2
HOSE, LOWER RADIATOR
9
1294 862 H1
10
148 344
VALVE, DRAIN
11
299 486 R1
12
427 698 C1
HOSE - 24 IN
Выбрано товаров: 0