Запчасти Komatsu GD655-3C ГИДР. ПРОВОД. ОБОГРЕВАТЕЛЯ (ДЛЯ ДВОЙН. ОБОГРЕВАТЕЛЬ.)(№-) КАБИНА ОПЕРАТОРА И СИСТЕМА УПРАВЛЕНИЯ

Схема запчастей Komatsu GD655-3C - ГИДР. ПРОВОД. ОБОГРЕВАТЕЛЯ (ДЛЯ ДВОЙН. ОБОГРЕВАТЕЛЬ.)(№-) КАБИНА ОПЕРАТОРА И СИСТЕМА УПРАВЛЕНИЯ
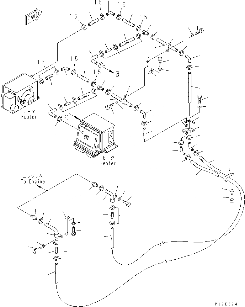
1
2
2
3
3
3
4
5
6
6
7
7
8
8
9
9
9
10
11
11
12
12
12
12
13
13
13
13
13
13
14
14
15
15
15
15
15
15
15
15
15
15
15
15
15
15
15
15
15
15
16
17
18
19
20
21
22
23
24
25
26
26
26
26
27
27
27
27
28
28
28
28
29
30
31
FIT
1:1
100%

Артикул

Название

Примечание

Количество

1

198-904-4180

HOSE

SN: 51001-UP

1шт.

2

09483-10501

HOSE

SN: 51001-UP

2шт.

3

145-Z79-6540

HOSE

SN: 51001-UP

3шт.

4

154-979-1350

HOSE

SN: 51001-UP

1шт.

5

09483-10502

HOSE

SN: 51001-UP

1шт.

6

195-979-3911

HOSE

SN: 51001-UP

2шт.

7

09483-10522

HOSE

SN: 51001-UP

1шт.

8

09483-10524

HOSE

SN: 51001-UP

1шт.

9

09483-30550

HOSE

SN: 51001-UP

3шт.

10

23B-809-7340

HOSE

SN: 51001-UP

1шт.

11

423-07-31110

JOINT

SN: 51001-UP

2шт.

12

09484-00560

CONNECTOR

SN: 51001-UP

4шт.

13

416-942-1550

ELBOW

SN: 51001-UP

6шт.

14

23B-807-3470

CONNECTOR

SN: 51001-UP

2шт.

15

09479-02400

CLAMP

SN: .-UP

32шт.

15

0

CLAMP

SN: 51001-.

32шт.

16

23B-807-3640

BRACKET

SN: 51001-UP

1шт.

17

01010-81020

BOLT

SN: 51001-UP

1шт.

18

01643-31032

WASHER

SN: 51001-UP

1шт.

19

23B-807-3750

PLATE

SN: 51001-UP

1шт.

20

01010-81020

BOLT

SN: 51001-UP

1шт.

21

01643-31032

WASHER

SN: 51001-UP

1шт.

22

23B-807-3580

SHEET

SN: 51001-UP

1шт.

23

23B-807-3590

PLATE

SN: 51001-UP

1шт.

24

01010-80625

BOLT

SN: 51001-UP

2шт.

25

01643-30623

WASHER

SN: 51001-UP

2шт.

26

04434-52511

CLIP

SN: 51001-UP

4шт.

27

01010-81020

BOLT

SN: 51001-UP

4шт.

28

01643-31032

WASHER

SN: 51001-UP

4шт.

29

04435-52210

CLIP

SN: 51001-UP

1шт.

30

01010-81020

BOLT

SN: 51001-UP

1шт.

31

01643-31032

WASHER

SN: 51001-UP

1шт.

Выбрано товаров: 32