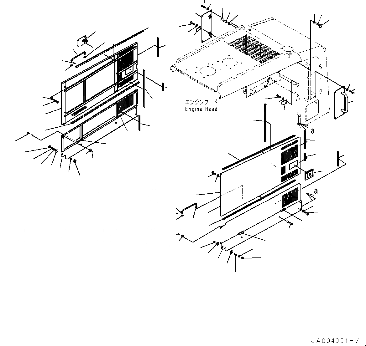
Запчасти Komatsu GD655-5 КАПОТ, С ПРЕФИЛЬТР АВТОМАТИЧ. DUST EJECT, КАПОТ БОКОВ. КРЫШКА КАПОТ, С ПРЕФИЛЬТР АВТОМАТИЧ. DUST EJECT

Схема запчастей Komatsu GD655-5 - КАПОТ, С ПРЕФИЛЬТР АВТОМАТИЧ. DUST EJECT, КАПОТ БОКОВ. КРЫШКА КАПОТ, С ПРЕФИЛЬТР АВТОМАТИЧ. DUST EJECT
1
1
5
28
6
6
7
8
9
4
11
12
12
13
14
15
10
18
18
19
19
16
21
21
22
22
22
22
23
23
25
25
26
24
28
28
29
27
36
39
39
40
40
41
41
2
2
38
38
20
20
3
3
17
16
17
37
42
43
43
42
35
35
30
30
31
31
32
32
33
33
34
34
FIT
1:1
100%

Артикул

Название

Примечание

Количество

1

23B-54-71560

Cover

SN: B40001-UP

2шт.

2

01010-81020

Bolt

SN: B40001-UP

8шт.

3

01643-31032

Washer

SN: B40001-UP

8шт.

4

23B-54-71410

Cover,LHS

SN: B40001-UP

1шт.

5

20Y-54-74172

Lock

SN: B40001-UP

1шт.

6

23B-54-71460

Seal

SN: B40001-UP

2шт.

7

23B-54-71470

Seal

SN: B40001-UP

1шт.

8

23B-54-71480

Seal

SN: B40001-UP

1шт.

9

23B-54-71490

Seal

SN: B40001-UP

1шт.

10

23B-54-71420

Cover,RHS

SN: B40001-UP

1шт.

11

20Y-54-74172

Lock

SN: B40001-UP

1шт.

12

23B-54-71460

Seal

SN: B40001-UP

2шт.

13

23B-54-71470

Seal

SN: B40001-UP

1шт.

14

23B-54-71480

Seal

SN: B40001-UP

1шт.

15

23B-54-71490

Seal

SN: B40001-UP

1шт.

16

01010-81220

Bolt

SN: B40001-UP

8шт.

17

01643-31232

Washer

SN: B40001-UP

8шт.

18

20Y-54-14290

Stopper

SN: B40001-UP

4шт.

19

01580-11008

Nut

SN: B40001-UP

4шт.

20

20Y-00-11350

Plate

SN: B40001-UP

4шт.

21

23B-54-71390

Bar

SN: B40001-UP

2шт.

22

01643-31032

Washer

SN: B40001-UP

4шт.

23

04050-12020

Pin, Cotter

SN: B40001-UP

4шт.

24

23B-54-71431

Cover

SN: B40001-UP

1шт.

25

23B-54-71810

Hinge,Welded

SN: B40001-UP

2шт.

26

23B-54-71510

Seal

SN: B40001-UP

1шт.

27

23B-54-71441

Cover

SN: B40001-UP

1шт.

28

23B-54-71810

Hinge,Welded

SN: B40001-UP

2шт.

29

23B-54-71510

Seal

SN: B40001-UP

1шт.

30

417-62-13620

Cushion

SN: B40001-UP

2шт.

31

415-64-13120

Washer

SN: B40001-UP

2шт.

32

01643-31032

Washer

SN: B40001-UP

2шт.

33

01435-01030

Bolt

SN: B40001-UP

2шт.

34

421-54-34910

Cap

SN: B40001-UP

2шт.

35

23B-54-71450

Spacer

SN: B40001-UP

2шт.

36

01010-81020

Bolt

SN: B40001-UP

4шт.

37

01643-31032

Washer

SN: B40001-UP

4шт.

38

20Y-54-14290

Stopper

SN: B40001-UP

4шт.

39

20R-54-11460

Spring

SN: B40001-UP

4шт.

40

01023-60512

Screw

SN: B40001-UP

8шт.

41

23B-54-71260

Plate

SN: B40001-UP

2шт.

42

01010-81025

Bolt

SN: B40001-UP

4шт.

43

01643-31032

Washer

SN: B40001-UP

4шт.

Выбрано товаров: 43