Качественные детали и логистика
Оригинальные и аналоговые запчасти с доставкой по России, Казахстану и Беларуси
©2022 PartSell ООО "Система" ИНН 2463123282 ОГРН 1212400004838
Центральный офис: г. Красноярск, Академика Киренского, д.87, пом.4
Телефон: 8 (800) 777-65-74 Email: zakaz@partsell.ru
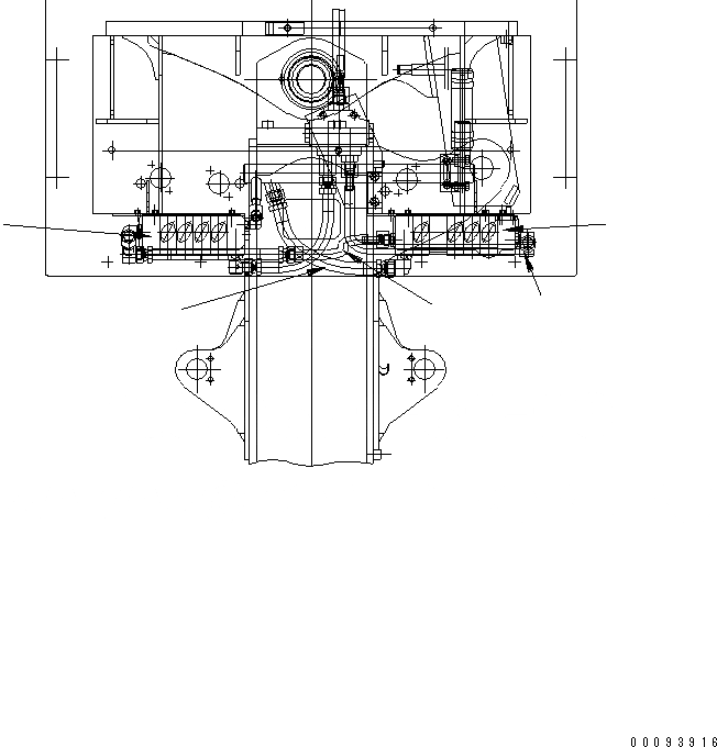
ОСНОВН.E УПРАВЛЯЮЩ. КЛАПАН (С РЫХЛИТЕЛЕМ)
№
Артикул
Название
Примечание
Количество
1
23A-60-12600
CONTROL VALVE ASS'Y,L.H. (SEE FIG. 8203)
SN: 1001-UP
1шт.
2
23A-60-12200
CONTROL VALVE ASS'Y,R.H. (SEE FIG. 6401)
3
23B-60-17670
TUBE
4
23B-60-16180
5
23A-60-15620
HOSE
Выбрано товаров: 0