Запчасти Komatsu GD675-3A КАБИНА (КАБИНА EXTERIOR ЧАСТИ) (НИЗ. КАБИНА ROPS) КАБИНА ОПЕРАТОРА И СИСТЕМА УПРАВЛЕНИЯ

Схема запчастей Komatsu GD675-3A - КАБИНА (КАБИНА EXTERIOR ЧАСТИ) (НИЗ. КАБИНА ROPS) КАБИНА ОПЕРАТОРА И СИСТЕМА УПРАВЛЕНИЯ
1
1
2
2
3
4
4
4
5
6
7
8
8
9
9
10
11
12
13
14
15
16
17
18
19
20
21
22
23
24
FIT
1:1
100%

Артикул

Название

Примечание

Количество

|$11

23B-952-4090

CAB ASS'Y

SN: 11001-UP

1шт.

|$12

23B-952-1011

CAB ASS'Y

SN: 10001-11000

1шт.

|$13

23B-952-5010

CAB ASS'Y,(W/FRONT L. AND REAR WIPER)

SN: 11001-UP

1шт.

|$14

23B-952-1021

CAB ASS'Y,(W/FRONT L. AND REAR WIPER)

SN: 10001-11000

1шт.

|$15

23B-952-5020

CAB ASS'Y,(W/RADIO F/SOUTH AMERICA)

SN: 11001-UP

1шт.

|$16

23B-952-1031

CAB ASS'Y,(W/RADIO F/SOUTH AMERICA)

SN: 10001-11000

1шт.

|$17

23B-952-5030

CAB ASS'Y,(W/RADIO F/ASIA)

SN: 11001-UP

1шт.

|$18

23B-952-1041

CAB ASS'Y,(W/RADIO F/ASIA)

SN: 10001-11000

1шт.

|$19

23B-952-5060

CAB ASS'Y,(W/A.C.)

SN: 11001-UP

1шт.

|$20

23B-952-1072

CAB ASS'Y,(W/A.C.)

SN: 10001-11000

1шт.

|$$11

THESE ASSEMBLIES CONSIST OF ALL PARTS SHOWN IN FIGS.K0210-01A0 TO K0210-17A4

-1шт.

|$22

22B-952-6290

CAB ASS'Y,(KOMTRAX) (TURKY)

SN: 11162-UP

1шт.

|$$13

THIS ASSEMBLY CONSISTS OF ALL PARTS SHOWN IN FIGS.K0210-01A6 TO K0210-21A6

-1шт.

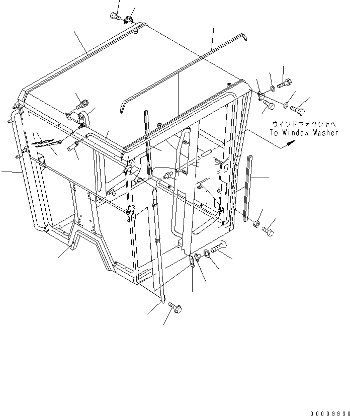
1

23A-952-1391

TRIM

SN: 10001-UP

2шт.

2

23A-952-1410

TRIM

SN: 10001-UP

2шт.

3

23A-952-1420

SEAL

SN: 10001-UP

1шт.

4

20Y-54-11611

STOPPER

SN: 10001-UP

4шт.

5

20T-54-74550

NUT

SN: 10001-UP

4шт.

6

23A-952-1440

BRACKET,L.H.

SN: 10001-UP

1шт.

7

23A-952-1450

BRACKET,R.H.

SN: 10001-UP

1шт.

8

01010-D0816

BOLT

SN: 10001-UP

4шт.

9

01643-70823

WASHER

SN: 10001-UP

4шт.

10

08180-12411

WIPER MOTOR ASS'Y

SN: 10001-UP

1шт.

11

01023-60512

SCREW

SN: 10001-UP

2шт.

12

20T-54-84840

ARM,WIPER

SN: 10001-UP

1шт.

13

20T-54-74990

BLADE,WIPER

SN: 10001-UP

1шт.

14

22T-55-11630

NOZZLE ASS'Y

SN: 10001-UP

1шт.

15

23A-952-1521

HOSE, 5200MM

SN: 10001-UP

1шт.

16

23A-952-1550

HOSE, 2000MM

SN: 10001-UP

1шт.

17

120-Y79-5760

VALVE

SN: 10001-UP

1шт.

18

21J-54-16190

STRIKER

SN: 10001-UP

2шт.

19

01240-01020

SCREW

SN: 10001-UP

4шт.

20

20U-54-25190

WASHER

SN: 10001-UP

4шт.

21

23A-952-1890

PLATE

SN: 10001-UP

2шт.

22

23B-952-1871

HANDRAIL,L.H.

SN: 10001-UP

1шт.

23

23B-952-2250

HANDRAIL,R.H.

SN: 10001-UP

1шт.

24

01435-40820

BOLT

SN: 10001-UP

8шт.

Выбрано товаров: 37