Запчасти Komatsu GD675-3A ЭЛЕКТРИКА (ГОЛОВНОЕ ОСВЕЩЕНИЕ И TURN SIGNAL ОСВЕЩЕНИЕ) (ДЛЯ F. РАМА MTG.) ЭЛЕКТРИКА

Схема запчастей Komatsu GD675-3A - ЭЛЕКТРИКА (ГОЛОВНОЕ ОСВЕЩЕНИЕ И TURN SIGNAL ОСВЕЩЕНИЕ) (ДЛЯ F. РАМА MTG.) ЭЛЕКТРИКА
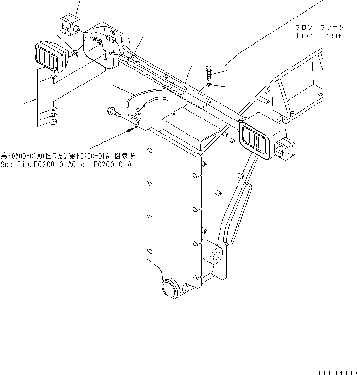
1
2
3
4
5
6
7
8
FIT
1:1
100%

Артикул

Название

Примечание

Количество

1

23S-06-54111

LAMP ASS'Y,HEAD

SN: 10001-UP

2шт.

1

424-06-23230

BULB, 75/70W

SN: 10001-UP

1шт.

1

23S-06-54121

LENS ASS'Y

SN: 10001-UP

1шт.

2

08034-20519

BAND

SN: 10001-UP

1шт.

3

23B-06-44110

BRACKET

SN: 10001-UP

1шт.

4

01010-81030

BOLT

SN: 10001-UP

2шт.

5

01643-31032

WASHER

SN: 10001-UP

2шт.

6

23B-06-42460

LAMP ASS'Y,COMBINATION

SN: 11122-UP

2шт.

6

414-06-43221

LENS,FRONT

SN: 10001-11121

2шт.

6

41G-06-13210

LENS,FRONT

SN: 10001-UP

1шт.

6

41G-06-13220

LENS,REAR

SN: 10001-UP

1шт.

6

41G-06-13230

BULB, 5W

SN: 10001-UP

1шт.

6

08105-12420

BULB, 25W

SN: 10001-UP

1шт.

6

01220-40425

SCREW

SN: 10001-UP

4шт.

6

08056-00371

CONNECTOR

SN: 11121-UP

1шт.

7

23B-06-41212

HARNESS

SN: 10001-UP

1шт.

8

08034-20519

BAND

SN: 10001-UP

2шт.

Выбрано товаров: 17