Запчасти Komatsu GD705A-4A-N РЫЧАГ УПРАВЛ-Я¤ ЛЕВ.(№-) СИСТЕМА УПРАВЛЕНИЯ

Схема запчастей Komatsu GD705A-4A-N - РЫЧАГ УПРАВЛ-Я¤ ЛЕВ.(№-) СИСТЕМА УПРАВЛЕНИЯ
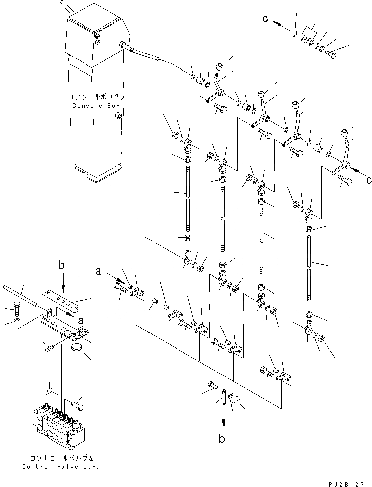
1
2
3
4
5
6
7
8
9
9
9
9
9
9
9
9
10
11
12
13
13
14
14
14
14
15
15
15
15
16
16
16
16
17
17
17
17
18
18
18
18
19
19
19
19
19
19
19
19
20
20
20
20
20
20
20
20
21
21
21
21
21
21
21
21
22
23
24
25
25
25
25
25
26
26
26
26
26
27
28
29
30
31
32
33
34
35
36
37
37
38
FIT
1:1
100%

Артикул

Название

Примечание

Количество

1

234-43-61240

LEVER,ARTICULATE

SN: 13001-UP

1шт.

2

237-43-00100

KNOB ASS'Y,ARTICULATE

SN: 13001-UP

1шт.

|2

237-43-17490

KNOB

SN: 13001-UP

1шт.

|2

237-54-13260

PLATE¤ OPERATING

SN: 13001-UP

1шт.

3

234-43-61230

LEVER,DRAWBAR SHIFT

SN: 13001-UP

1шт.

4

232-43-00123

KNOB ASS'Y,DRAWBAR SHIFT

SN: 13001-UP

1шт.

|4

237-43-17480

KNOB

SN: 13001-UP

1шт.

|4

232-43-18281

PLATE¤ OPERATING

SN: 13001-UP

1шт.

5

234-43-61250

LEVER,CIRCLE REVERSE

SN: 13001-UP

1шт.

6

237-43-00072

KNOB ASS'Y,CIRCLE REVERSE

SN: 13001-UP

1шт.

|6

237-43-17480

KNOB

SN: 13001-UP

1шт.

|6

237-54-13251

PLATE¤ OPERATING

SN: 13001-UP

1шт.

7

234-43-61220

LEVER,BLADE LIFT

SN: 13001-UP

1шт.

8

237-43-00081

KNOB ASS'Y,BLADE LIFT

SN: 13001-UP

1шт.

|8

237-43-17480

KNOB

SN: 13001-UP

1шт.

|8

237-54-13211

PLATE¤ OPERATING

SN: 13001-UP

1шт.

9

237-43-17420

WASHER

SN: 13001-UP

8шт.

10

23A-43-18190

WASHER

SN: 13001-UP

1шт.

11

01220-40816

SCREW

SN: 13001-UP

1шт.

12

01643-30823

WASHER

SN: 13001-UP

1шт.

13

232-43-58380

SHIM¤ 0.2MM

SN: 13001-UP

6шт.

|13

232-43-58370

SHIM¤ 0.5MM

SN: 13001-UP

4шт.

14

235-43-31150

ROD

SN: 13001-UP

4шт.

15

04250-60847

END,ROD¤ L.H. THREAD

SN: 13001-UP

4шт.

16

01508-40805

NUT,L.H. THREAD

SN: 13001-UP

4шт.

17

04250-40847

END,ROD

SN: 13001-UP

4шт.

18

01580-10806

NUT

SN: 13001-UP

4шт.

19

235-43-18380

BOLT

SN: 13001-UP

8шт.

20

01580-10806

NUT

SN: 13001-UP

8шт.

21

04254-10823

SPACER

SN: 13001-UP

16шт.

22

234-43-61110

BRACKET

SN: 13001-UP

1шт.

23

01010-51020

BOLT

SN: 13001-UP

2шт.

24

01643-31032

WASHER

SN: 13001-UP

2шт.

25

23D-43-21390

LEVER

SN: 13064-UP

5шт.

26

234-43-38440

BUSHING

SN: 13064-UP

5шт.

27

234-43-61140

SHAFT

SN: 13001-UP

1шт.

28

04025-00532

PIN,SPRING

SN: 13001-UP

1шт.

29

23D-43-21371

ROD

SN: 13064-UP

5шт.

30

04205-10618

PIN

SN: 13064-UP

5шт.

31

01641-20608

WASHER

SN: 13064-UP

5шт.

32

04050-11612

PIN,COTTER

SN: 13064-UP

5шт.

33

235-43-18441

PIN

SN: 13064-UP

5шт.

34

04050-11212

PIN,COTTER

SN: 13064-UP

5шт.

35

234-43-61180

PLATE

SN: 13064-UP

1шт.

36

234-54-61190

CUSHION

SN: 13001-UP

1шт.

37

237-43-17440

COLLAR

SN: 13001-UP

2шт.

38

23D-43-21430

COLLAR

SN: 13064-UP

1шт.

Выбрано товаров: 47