Запчасти Komatsu GD705A-4A РЫЧАГ УПРАВЛ-Я¤ ЛЕВ.(№-) СИСТЕМАУПРАВЛЕНИЯ ПОВОРОТОМ

Схема запчастей Komatsu GD705A-4A - РЫЧАГ УПРАВЛ-Я¤ ЛЕВ.(№-) СИСТЕМАУПРАВЛЕНИЯ ПОВОРОТОМ
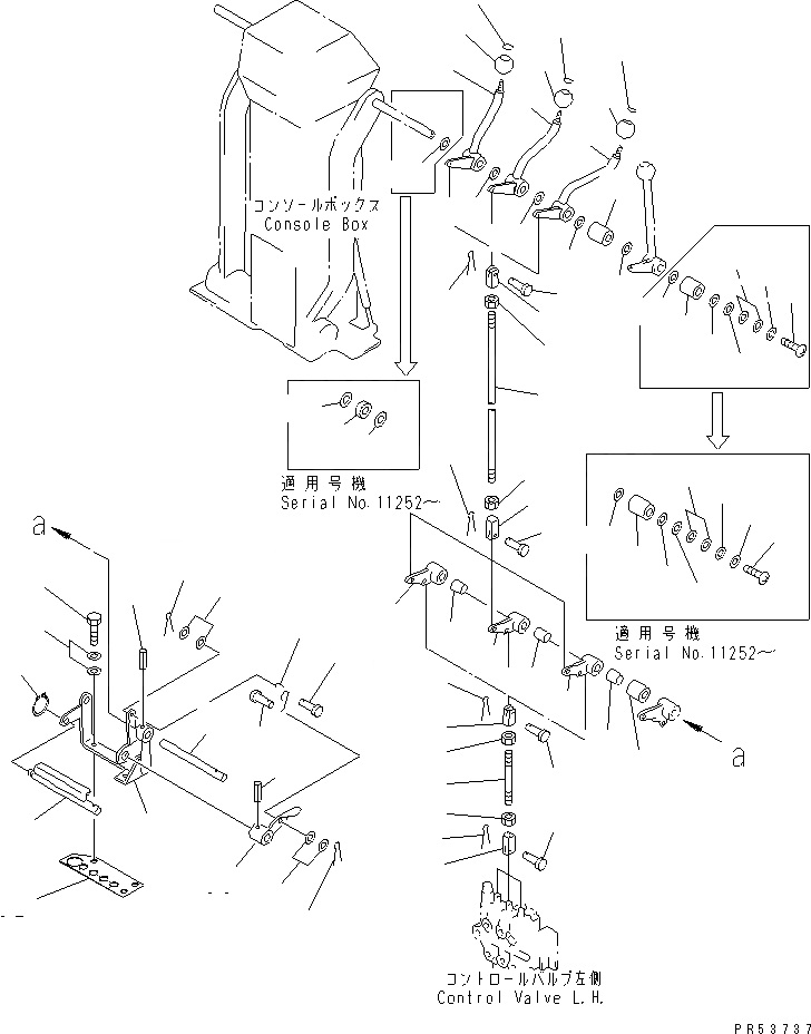
1
2
3
4
5
6
7
8
9
10
11
11
11
11
11
11
11
11
11
11
12
12
13
13
14
14
15
16
16
17
17
18
18
19
20
21
22
23
24
24
25
25
26
26
27
28
29
29
29
30
31
32
33
34
35
36
36
37
38
39
39
40
41
42
42
43
44
45
46
47
48
49
50
51
52
FIT
1:1
100%

Артикул

Название

Примечание

Количество

1

234-43-31140

LEVER,ARTICULATE

SN: 11045-UP

1шт.

|1

234-885-1610

BUSHING,20MM

SN: 11045-UP

1шт.

|1

06600-00805

BUSHING,8MM

SN: 11045-UP

1шт.

2

237-43-17490

KNOB

SN: 11001-UP

1шт.

3

237-54-13260

PLATE¤ OPERATING

SN: 11001-UP

1шт.

4

234-43-31150

LEVER,DRAWBAR SIDE SHIFT

SN: 11045-UP

1шт.

|4

234-885-1610

BUSHING,20MM

SN: 11045-UP

1шт.

|4

06600-00805

BUSHING,8MM

SN: 11045-UP

1шт.

5

237-43-17480

KNOB

SN: 11001-UP

1шт.

6

232-43-18290

PLATE¤ OPERATING

SN: 11001-UP

1шт.

7

234-43-31160

LEVER,BLADE LIFT¤ L.H.

SN: 11045-UP

1шт.

|7

234-885-1610

BUSHING,20MM

SN: 11045-UP

1шт.

|7

06600-00805

BUSHING,8MM

SN: 11045-UP

1шт.

8

237-43-17480

KNOB

SN: 11001-UP

1шт.

9

237-54-13210

PLATE¤ OPERATING

SN: 11001-UP

1шт.

10

237-43-17440

COLLAR

SN: 11252-UP

1шт.

|10

232-43-58390

COLLAR

SN: 11045-11251

1шт.

11

237-43-17420

WASHER

SN: 11045-UP

7шт.

12

232-43-00310

SHIM ASS'Y

SN: 11045-UP

1шт.

|12

0

SHIM¤ 0.2MM

SN: 11045-UP

6шт.

|12

0

SHIM¤ 0.5MM

SN: 11045-UP

4шт.

13

237-43-17440

COLLAR

SN: 11252-UP

1шт.

|13

237-43-27350

COLLAR

SN: 11045-11251

1шт.

14

23D-43-18540

COLLAR

SN: 11252-UP

2шт.

15

23D-43-18590

COLLAR

SN: 11252-UP

1шт.

16

01220-40816

SCREW

SN: 11252-UP

1шт.

|16

0

SCREW

SN: 11083-11251

1шт.

|16

238-43-38830

BOLT

SN: 11045-11082

1шт.

17

01643-30823

WASHER

SN: 11083-UP

1шт.

|17

01602-21236

WASHER,SPRING

SN: 11045-11082

1шт.

18

233-43-18340

WASHER

SN: 11083-UP

1шт.

|18

232-43-58630

WASHER

SN: 11045-11082

1шт.

19

233-43-18270

ROD

SN: 11045-UP

3шт.

20

04211-20844

YOKE

SN: 11045-UP

3шт.

21

01580-10806

NUT

SN: 11045-UP

3шт.

22

04221-20844

YOKE,L.H. THREAD

SN: 11045-UP

3шт.

23

01508-20805

NUT,L.H. THREAD

SN: 11045-UP

3шт.

24

04205-10822

PIN

SN: 11045-UP

6шт.

25

234-43-18710

PIN,SNAP

SN: 11045-UP

6шт.

26

232-43-58480

LEVER

SN: 11045-UP

2шт.

|26

06600-00805

BUSHING

SN: 11045-UP

2шт.

27

232-43-58490

LEVER

SN: 11045-UP

1шт.

|27

06600-00805

BUSHING

SN: 11045-UP

2шт.

28

232-43-58390

COLLAR

SN: 11045-UP

1шт.

29

234-885-1610

BUSHING

SN: 11045-UP

3шт.

30

234-43-37260

BRACKET

SN: 11045-UP

1шт.

31

01010-51225

BOLT

SN: 11045-UP

2шт.

32

01643-31232

WASHER

SN: 11045-UP

4шт.

33

232-43-58730

SHAFT

SN: 11045-UP

1шт.

34

233-43-27270

LOCK

SN: 11045-UP

1шт.

35

233-43-27210

LEVER

SN: 11045-UP

1шт.

36

04025-00532

PIN,SPRING

SN: 11045-UP

2шт.

37

04064-01410

RING,SNAP

SN: 11045-UP

1шт.

38

232-855-1320

SPRING

SN: 11045-UP

1шт.

39

04205-10616

PIN

SN: 11045-UP

2шт.

40

01643-30623

WASHER

SN: 11045-UP

2шт.

41

01641-20608

WASHER

SN: 11045-UP

2шт.

42

04050-11610

PIN,COTTER

SN: 11045-UP

2шт.

43

232-43-58740

ROD

SN: 11045-UP

3шт.

44

04221-20844

YOKE,L.H. THREAD

SN: 11045-UP

3шт.

45

01508-20805

NUT,L.H. THREAD

SN: 11045-UP

3шт.

46

04210-20624

YOKE

SN: 11045-UP

3шт.

47

01580-10605

NUT

SN: 11045-UP

3шт.

48

04205-10822

PIN

SN: 11045-UP

3шт.

49

234-43-18710

PIN,SNAP

SN: 11045-UP

3шт.

50

04205-10618

PIN

SN: 11045-UP

3шт.

51

04050-11612

PIN,COTTER

SN: 12016-UP

3шт.

|51

233-43-27750

PIN,SNAP

SN: 11045-12015

3шт.

52

234-43-31310

COVER

SN: 11405-UP

1шт.

Выбрано товаров: 69