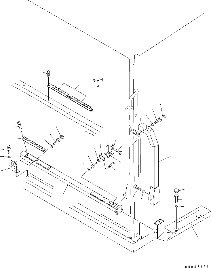
Запчасти Komatsu GD825A-2 КОНДИЦ. ВОЗДУХА (8/9) (ВОЗДУХОВОДЫ)(№-) РАМА И ЧАСТИ КОРПУСА

Схема запчастей Komatsu GD825A-2 - КОНДИЦ. ВОЗДУХА (8/9) (ВОЗДУХОВОДЫ)(№-) РАМА И ЧАСТИ КОРПУСА
1
2
3
4
5
6
7
8
9
10
11
12
13
14
15
16
17
18
19
20
21
22
23
24
25
26
27
28
28
29
29
30
FIT
1:1
100%

Артикул

Название

Примечание

Количество

1

235-809-4230

DUCT

SN: 12503-UP

1шт.

2

09415-02512

CAP

SN: 12503-UP

2шт.

3

01010-81230

BOLT

SN: 12503-UP

2шт.

4

01643-31232

WASHER

SN: 12503-UP

2шт.

5

01010-80816

BOLT

SN: 12503-UP

2шт.

6

01643-30823

WASHER

SN: 12503-UP

2шт.

7

235-809-3951

DUCT

SN: 12503-UP

1шт.

8

09415-02110

CAP

SN: 12503-UP

1шт.

9

235-809-4110

GASKET

SN: 12503-UP

1шт.

10

01010-80610

BOLT

SN: 12503-UP

2шт.

11

01643-30623

WASHER

SN: 12503-UP

2шт.

12

235-809-3930

DUCT

SN: 12503-UP

1шт.

13

01010-80812

BOLT

SN: 12503-UP

2шт.

14

01643-30823

WASHER

SN: 12503-UP

2шт.

15

09415-02110

CAP

SN: 12503-UP

2шт.

16

235-809-4160

BRACKET

SN: 12503-UP

2шт.

17

01010-80816

BOLT

SN: 12503-UP

2шт.

18

01643-30823

WASHER

SN: 12503-UP

2шт.

19

235-809-4130

SHUTTER

SN: 12503-UP

1шт.

20

235-809-4140

PLATE

SN: 12503-UP

1шт.

21

01224-40306

SCREW

SN: 12503-UP

4шт.

22

01220-40410

SCREW

SN: 12503-UP

2шт.

23

235-809-4150

RUBBER

SN: 12503-UP

1шт.

24

01640-20610

WASHER

SN: 12503-UP

2шт.

25

01643-30623

WASHER

SN: 12503-UP

1шт.

26

23B-950-2230

KNOB

SN: 12503-UP

1шт.

27

01220-40306

SCREW

SN: 12503-UP

1шт.

28

09487-30220

NOZZLE

SN: 12503-UP

4шт.

29

01224-40412

SCREW

SN: 12503-UP

8шт.

30

235-809-4180

PLATE, MARK

SN: 12503-UP

1шт.

Выбрано товаров: 30