Запчасти Komatsu GD825A-2 ГИДРАВЛ РЫЧАГ УПРАВЛ-Я (ЛЕВ.) СИСТЕМА УПРАВЛЕНИЯ

Схема запчастей Komatsu GD825A-2 - ГИДРАВЛ РЫЧАГ УПРАВЛ-Я (ЛЕВ.) СИСТЕМА УПРАВЛЕНИЯ
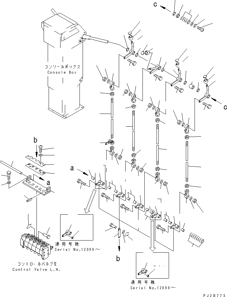
1
2
2
3
4
5
6
7
8
9
10
11
12
13
14
14
14
14
14
14
15
16
17
18
19
19
20
21
22
22
22
22
23
23
23
23
24
24
24
24
25
25
25
25
26
26
26
26
26
26
26
26
27
27
27
27
27
27
27
27
28
28
28
28
28
28
28
28
29
29
29
29
29
29A
29A
30
30
31
31
31
31
31
31
32
33
34
35
36
37
38
39
40
41
42
43
44
45
46
47
48
FIT
1:1
100%

Артикул

Название

Примечание

Количество

1

235-43-28140

LEVER,CIRCLE REVERSE

SN: 11001-UP

1шт.

2

234-43-00321

KNOB ASS'Y,CIRCLE REVERSE

SN: 12001-UP

1шт.

|2

234-43-00320

KNOB ASS'Y,CIRCLE REVERSE

SN: 11001-12000

1шт.

2

237-43-17480

KNOB

SN: 11001-UP

1шт.

3

234-53-32321

PLATE¤ OPERATING

SN: 12001-UP

1шт.

|3

234-53-32320

PLATE¤ OPERATING

SN: 11001-12000

1шт.

4

235-43-28151

LEVER,POWER TILT

SN: 12023-UP

1шт.

|4

235-43-28150

LEVER,POWER TILT

SN: 11001-12022

1шт.

|5

232-735-0050

KNOB ASS'Y,POWER TILT

SN: 11001-UP

1шт.

5

237-43-17480

KNOB

SN: 11001-UP

1шт.

6

232-735-1340

PLATE¤ OPERATING

SN: 11001-UP

1шт.

7

235-43-28140

LEVER,BLADE SIDE SHIFT

SN: 11001-UP

1шт.

|8

237-43-00061

KNOB ASS'Y,BLADE SIDE SHIFT

SN: 12001-UP

1шт.

|8

237-43-00060

KNOB ASS'Y,BLADE SIDE SHIFT

SN: 11001-12000

1шт.

8

237-43-17480

KNOB

SN: 11001-UP

1шт.

9

237-54-13231

PLATE¤ OPERATING

SN: 12001-UP

1шт.

|9

237-54-13230

PLATE¤ OPERATING

SN: 11001-12000

1шт.

10

235-43-28140

LEVER,BLADE LIFT

SN: 11001-UP

1шт.

|11

237-43-00081

KNOB ASS'Y,BLADE LIFT

SN: 12001-UP

1шт.

|11

237-43-00080

KNOB ASS'Y,BLADE LIFT

SN: 11001-12000

1шт.

11

237-43-17480

KNOB

SN: 11001-UP

1шт.

12

237-54-13211

PLATE¤ OPERATING

SN: 12001-UP

1шт.

|12

237-54-13210

PLATE¤ OPERATING

SN: 11001-12000

1шт.

13

237-43-17440

COLLAR

SN: 11001-UP

1шт.

14

237-43-17420

WASHER

SN: 11001-UP

6шт.

15

23D-43-18540

COLLAR

SN: 11001-UP

1шт.

16

23A-43-18190

WASHER

SN: 11001-UP

1шт.

17

01220-40816

SCREW

SN: 11001-UP

1шт.

18

01643-30823

WASHER

SN: 11001-UP

1шт.

19

235-43-31620

ROD

SN: 11001-UP

2шт.

20

235-43-31640

ROD

SN: 12023-UP

1шт.

|20

23D-43-18510

ROD

SN: 11001-12022

1шт.

21

235-43-31150

ROD

SN: 11001-UP

1шт.

22

04250-40847

END

SN: 11001-UP

4шт.

23

01580-10806

NUT

SN: 11001-UP

4шт.

24

04250-60847

END,L.H. THREAD

SN: 11001-UP

4шт.

25

01508-20805

NUT,L.H. THREAD

SN: 11001-UP

4шт.

26

235-43-18380

BOLT

SN: 11001-UP

8шт.

27

01580-10806

NUT

SN: 11001-UP

8шт.

28

01643-30823

WASHER

SN: 11001-UP

8шт.

29

235-43-32310

LEVER

SN: 12099-UP

4шт.

|29

0

LEVER

SN: 12095-12098

4шт.

|$$43

(235-43-32310{235-43-32340)}

-1шт.

|29

0

LEVER

SN: 12001-12094

4шт.

|29

235-43-28380

LEVER

SN: 11001-11999

4шт.

29A

235-43-32340

BUSHING

SN: 12099-UP

5шт.

30

235-43-32310

LEVER

SN: 12099-UP

1шт.

|30

0

LEVER

SN: 12095-12098

1шт.

|$$49

(235-43-32310{235-43-32340)}

-1шт.

|30

0

LEVER

SN: 12001-12094

1шт.

|30

235-43-28390

LEVER

SN: 11001-11999

1шт.

31

234-43-38440

BUSHING

SN: 11001-UP

10шт.

32

235-43-28281

BRACKET,L.H.

SN: 11001-UP

1шт.

33

01010-50816

BOLT

SN: 11001-UP

2шт.

34

01643-30823

WASHER

SN: 11001-UP

2шт.

35

235-43-28370

SHAFT

SN: 11001-UP

1шт.

36

04025-00532

PIN,SPRING

SN: 11001-UP

1шт.

37

235-43-32211

YOKE

SN: 12102-UP

5шт.

|37

235-43-32210

YOKE

SN: 12023-12101

5шт.

|37

235-43-18560

YOKE

SN: 11001-12022

5шт.

38

04205-10618

PIN

SN: 11001-UP

5шт.

39

01641-20608

WASHER

SN: 11001-UP

5шт.

40

233-43-27750

PIN,SNAP

SN: 11001-UP

5шт.

41

235-43-18440

PIN

SN: 11001-UP

5шт.

42

233-43-27750

PIN,SNAP

SN: 11001-UP

5шт.

43

235-43-31160

COVER,L.H.

SN: 11001-UP

1шт.

44

235-43-31170

PLATE

SN: 11001-UP

1шт.

45

01220-40610

SCREW

SN: 11001-UP

2шт.

46

01643-30623

WASHER

SN: 11001-UP

2шт.

47

232-43-00370

SHIM ASS'Y

SN: 11001-UP

1шт.

|47

0

SHIM¤ 0.2MM

SN: 11001-UP

5шт.

|47

0

SHIM¤ 0.5MM

SN: 11001-UP

4шт.

48

235-43-00130

SHIM ASS'Y

SN: 11001-UP

1шт.

|48

0

SHIM¤ 0.5MM

SN: 11001-UP

8шт.

Выбрано товаров: 74