Запчасти Komatsu GD825A-2 СИСТЕМА ROPS (С КАБИНОЙ) РАМА И ЧАСТИ КОРПУСА

Схема запчастей Komatsu GD825A-2 - СИСТЕМА ROPS (С КАБИНОЙ) РАМА И ЧАСТИ КОРПУСА
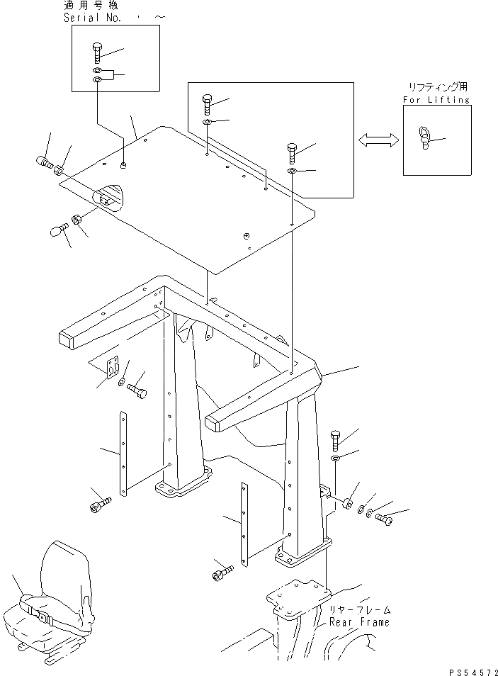
1
2
3
4
5
5
6
6
7
8
8
9
9
10
11
12
13
13
14
14
15
16
17
18
19
20
21
FIT
1:1
100%

Артикул

Название

Примечание

Количество

|1

235-957-0212

ROPS CAB ASS'Y,(FULL)

SN: .-UP

1шт.

|1

235-957-0211

ROPS CAB ASS'Y,(FULL)

SN: 11009-.

1шт.

|1

0

ROPS CAB ASS'Y,(FULL)

SN: 11001-11008

1шт.

|1

235-957-0232

ROPS CAB ASS'Y,(LOW)

SN: .-UP

1шт.

|1

235-957-0231

ROPS CAB ASS'Y,(LOW)

SN: 11009-.

1шт.

|1

0

ROPS CAB ASS'Y,(LOW)

SN: 11001-11008

1шт.

|$$7

THESE ASSEMBLIES CONSIST OF ALL PARTS SHOWN IN FIGS.5401 TO 5415A AND 5511.

-1шт.

1

235-957-3410

COLUMN,(FULL)

SN: 11001-UP

1шт.

|1

235-957-3310

COLUMN,(LOW)

SN: 11001-UP

1шт.

2

01010-53080

BOLT

SN: 11001-UP

8шт.

3

01643-33080

WASHER

SN: 11001-UP

8шт.

4

235-957-3121

PLATE

SN: 11001-UP

1шт.

5

01010-51625

BOLT

SN: 11001-UP

8шт.

6

01643-31645

WASHER

SN: 11001-UP

8шт.

7

04530-11628

BOLT,EYE

SN: 11001-UP

6шт.

8

21K-54-11310

STOPPER

SN: 11001-UP

12шт.

9

01580-11210

NUT

SN: 11001-UP

12шт.

10

235-957-3420

BRACKET

SN: 11001-UP

2шт.

11

01010-51025

BOLT

SN: 11009-UP

6шт.

|11

01010-51025

BOLT

SN: 11001-11008

8шт.

12

01643-31032

WASHER

SN: 11009-UP

6шт.

|12

01643-31032

WASHER

SN: 11001-11008

8шт.

13

235-950-5210

PLATE

SN: 11001-UP

2шт.

14

01252-41025

BOLT

SN: 11001-UP

8шт.

15

234-54-32710

STOPPER

SN: 11001-UP

2шт.

16

01220-40520

SCREW

SN: 11001-UP

2шт.

17

01601-20513

WASHER,SPRING

SN: 11001-UP

2шт.

18

01641-20508

WASHER

SN: 11001-UP

2шт.

19

09409-10001

BELT¤ LAP

SN: 11001-UP

1шт.

20

01010-51220

BOLT

SN: .-UP

2шт.

21

01643-31232

WASHER

SN: .-UP

4шт.

Выбрано товаров: 31