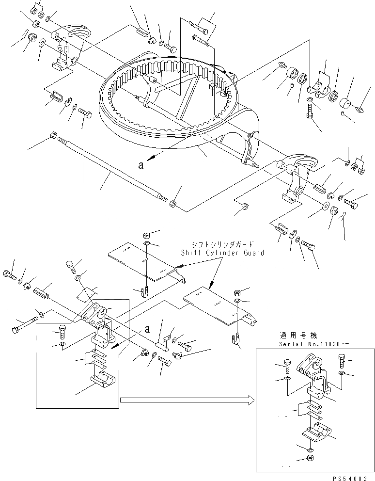
Запчасти Komatsu GD825A-2 КОЛЬЦЕВ. СУППОРТ(№-) РАБОЧЕЕ ОБОРУДОВАНИЕ

Схема запчастей Komatsu GD825A-2 - КОЛЬЦЕВ. СУППОРТ(№-) РАБОЧЕЕ ОБОРУДОВАНИЕ
1
2
2
3
3
4
4
5
6
6
7
7
8
9
9
9
9
9
9
10
10
10
10
10
10
11
11
12
12
13
13
14
14
15
16
16
16
16
17
18
19
20
21
22
23
24
25
26
27
27
28
28
29
30
31
31
32
32
33
33
34
35
35
36
37
38
38
38
38
39
39
39
39
39
39
40
40
41
41
42
42
FIT
1:1
100%

Артикул

Название

Примечание

Количество

1

235-70-13113

SUPPORT

SN: .-12050

1шт.

|1

0

SUPPORT

SN: 11001-.

1шт.

2

01590-15254

NUT

SN: 11001-12050

2шт.

3

235-70-13220

WASHER

SN: 11001-12050

2шт.

4

04050-18090

PIN,COTTER

SN: 11001-12050

2шт.

5

235-70-13250

BOLT

SN: 11001-12050

2шт.

6

01580-13024

NUT

SN: 11001-12050

4шт.

7

235-70-13460

WASHER

SN: 11001-12050

2шт.

8

235-70-13320

GUIDE

SN: 11001-12050

1шт.

9

01010-51235

BOLT

SN: 11001-12050

30шт.

10

01643-31232

WASHER

SN: 11001-12050

30шт.

|11

235-70-00021

BRACKET ASS'Y

SN: 11028-12050

1шт.

|11

0

BRACKET ASS'Y

SN: 11001-11027

1шт.

11

0

BRACKET

SN: 11028-12050

1шт.

|11

0

BRACKET

SN: 11001-11027

1шт.

12

0

BRACKET

SN: 11028-12050

1шт.

|12

0

BRACKET

SN: 11001-11027

1шт.

13

235-70-00231

SHIM ASS'Y

SN: 11028-12050

1шт.

|13

235-70-00230

SHIM ASS'Y

SN: 11001-11027

1шт.

|13

0

SHIM¤ 0.5MM

SN: 11028-12050

7шт.

|13

0

SHIM¤ 0.5MM

SN: 11001-11027

7шт.

14

01011-52200

BOLT

SN: 11028-12050

2шт.

|14

01010-51690

BOLT

SN: 11001-11027

4шт.

15

196-01-11180

BOLT

SN: 11028-12050

2шт.

16

01643-32260

WASHER

SN: 11028-12050

6шт.

|16

01643-31645

WASHER

SN: 11001-11027

4шт.

17

01580-12218

NUT

SN: 11028-12050

2шт.

18

235-70-13370

COVER

SN: 11001-12050

1шт.

19

01010-51016

BOLT

SN: 11001-12050

6шт.

20

01643-31032

WASHER

SN: 11001-12050

6шт.

21

235-70-13360

PIN

SN: 11001-12050

1шт.

22

07020-00675

FITTING,GREASE

SN: 11001-12050

1шт.

23

04082-00212

LOCK

SN: 11001-12050

1шт.

24

01010-51225

BOLT

SN: 11001-12050

2шт.

25

01643-31232

WASHER

SN: 11001-12050

2шт.

26

235-70-13242

ROD

SN: .-12050

1шт.

|26

235-70-13241

ROD

SN: 11001-.

1шт.

27

235-70-31410

NUT

SN: 11001-12050

2шт.

28

01580-15242

NUT

SN: 11001-12050

2шт.

29

01011-51405

BOLT

SN: 11001-12050

2шт.

30

01643-31445

WASHER

SN: 11001-12050

2шт.

31

235-70-13291

BUSHING

SN: 11001-12050

2шт.

32

07020-00000

FITTING,GREASE

SN: 11001-12050

2шт.

33

07145-00085

SEAL,OIL

SN: 11001-12050

2шт.

34

235-70-13280

CAP

SN: 11001-12050

2шт.

35

144-70-15251

PIN

SN: 11001-12050

2шт.

36

01010-52090

BOLT

SN: 11001-12050

4шт.

37

01643-32060

WASHER

SN: 11001-12050

4шт.

38

235-70-12210

GUIDE

SN: 11001-12050

4шт.

39

235-70-12220

PLATE

SN: 11001-12050

10шт.

40

07283-26155

CLIP

SN: 11001-12050

6шт.

41

01599-01011

NUT

SN: 11001-12050

12шт.

42

234-54-13252

WASHER

SN: 11001-12050

12шт.

Выбрано товаров: 53