Запчасти Komatsu GD825A-2E0 ОТВАЛ(№-) РАБОЧЕЕ ОБОРУДОВАНИЕ

Схема запчастей Komatsu GD825A-2E0 - ОТВАЛ(№-) РАБОЧЕЕ ОБОРУДОВАНИЕ
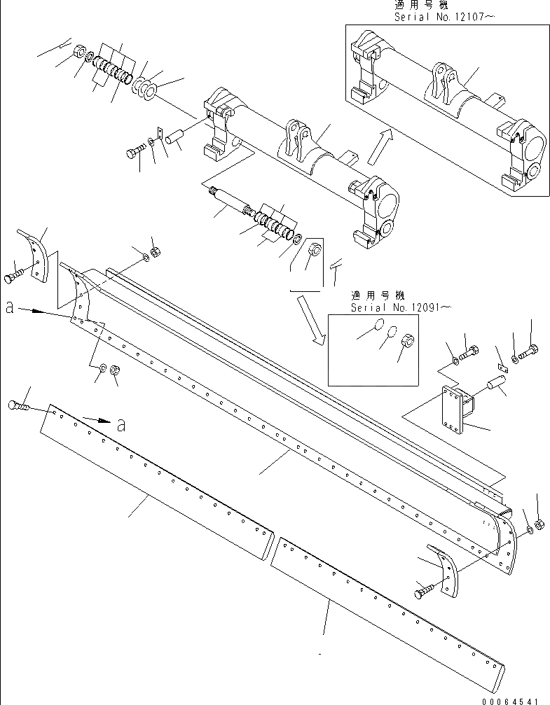
1
2
3
4
5
6
7
8
9
9
10
10
11
12
12
13
13
13
14
14
14
15
15
16
17
18
19
20
21
22
22
23
23
24
24
25
25
26
26
27
27
28
29
29
30
30
FIT
1:1
100%

Артикул

Название

Примечание

Количество

1

235-70-42111

BLADE

SN: 12096-UP

1шт.

1

0

BLADE

SN: 12051-12095

1шт.

1

235-70-42120

RAIL (WELDED)

SN: 12051-UP

1шт.

1

235-70-42130

RAIL (WELDED)

SN: 12051-UP

1шт.

2

235-70-42180

BRACKET

SN: 12051-UP

1шт.

3

01010-82060

BOLT

SN: 12051-UP

6шт.

4

01643-32060

WASHER

SN: 12051-UP

6шт.

5

235-70-42190

PIN

SN: 12051-UP

1шт.

6

04082-00212

LOCK

SN: 12051-UP

1шт.

7

01010-81225

BOLT

SN: 12051-UP

2шт.

8

01643-31232

WASHER

SN: 12051-UP

2шт.

9

235-70-12320

EDGE

SN: 12051-UP

2шт.

10

234-70-32230

EDGE

SN: 12051-UP

2шт.

11

234-70-32270

BOLT

SN: 12051-UP

36шт.

12

234-70-32260

BOLT

SN: 12051-UP

8шт.

13

234-70-32290

NUT

SN: 12051-UP

44шт.

14

01643-32060

WASHER

SN: 12051-UP

44шт.

15

235-70-43251

BRACKET

SN: 12107-UP

1шт.

15

0

BRACKET

SN: 12051-12106

1шт.

16

235-70-42190

PIN

SN: 12051-UP

1шт.

17

04082-00212

LOCK

SN: 12051-UP

1шт.

18

01010-81225

BOLT

SN: 12051-UP

2шт.

19

01643-31232

WASHER

SN: 12051-UP

2шт.

20

235-70-43141

SHAFT

SN: 12091-UP

2шт.

20

235-70-43140

SHAFT

SN: 12051-12090

2шт.

21

235-70-43151

WASHER

SN: 12091-UP

8шт.

21

235-70-43150

WASHER

SN: 12051-12090

10шт.

22

235-70-43161

SHIM

SN: 12091-UP

10шт.

22

235-70-43181

SHIM

SN: 12091-UP

10шт.

22

235-70-00290

SHIM ASS'Y

SN: 12051-12090

1шт.

22

0

SHIM

SN: 12051-12090

10шт.

22

0

SHIM

SN: 12051-12090

10шт.

23

417-09-11120

SEAL

SN: 12099-UP

8шт.

23

0

SEAL

SN: 12091-12098

8шт.

23

235-70-13450

SEAL

SN: 12051-12090

8шт.

24

235-70-43310

BUSHING

SN: 12091-UP

2шт.

24

235-70-13430

BUSHING

SN: 12051-12090

8шт.

25

235-70-43320

BUSHING

SN: 12091-UP

2шт.

25

235-70-13440

BUSHING

SN: 12051-12090

4шт.

26

235-70-43340

SHIM, 0.5MM

SN: 12091-UP

8шт.

26

235-70-43350

SHIM, 0.1MM

SN: 12091-UP

16шт.

27

235-70-43360

WASHER

SN: 12091-UP

4шт.

27

235-70-13220

WASHER

SN: 12051-12090

4шт.

28

01590-34548

NUT

SN: 12091-UP

2шт.

28

01590-35254

NUT

SN: 12051-12090

4шт.

29

235-70-31411

PIN

SN: 12091-UP

2шт.

30

04050-18080

PIN,COTTER

SN: 12091-UP

4шт.

30

04050-18090

PIN,COTTER

SN: 12051-12090

4шт.

Выбрано товаров: 48