Запчасти Komatsu 445FXL-1 T-A РАБОЧЕЕ ОБОРУДОВАНИЕ ТРУБКА ЛИНИИ BAR SAW ЛИНИИ БЕЗ LATERAL ИЛИ ACCUMULATE РАБОЧЕЕ ОБОРУДОВАНИЕ

Схема запчастей Komatsu 445FXL-1 - T-A РАБОЧЕЕ ОБОРУДОВАНИЕ ТРУБКА ЛИНИИ BAR SAW ЛИНИИ БЕЗ LATERAL ИЛИ ACCUMULATE РАБОЧЕЕ ОБОРУДОВАНИЕ
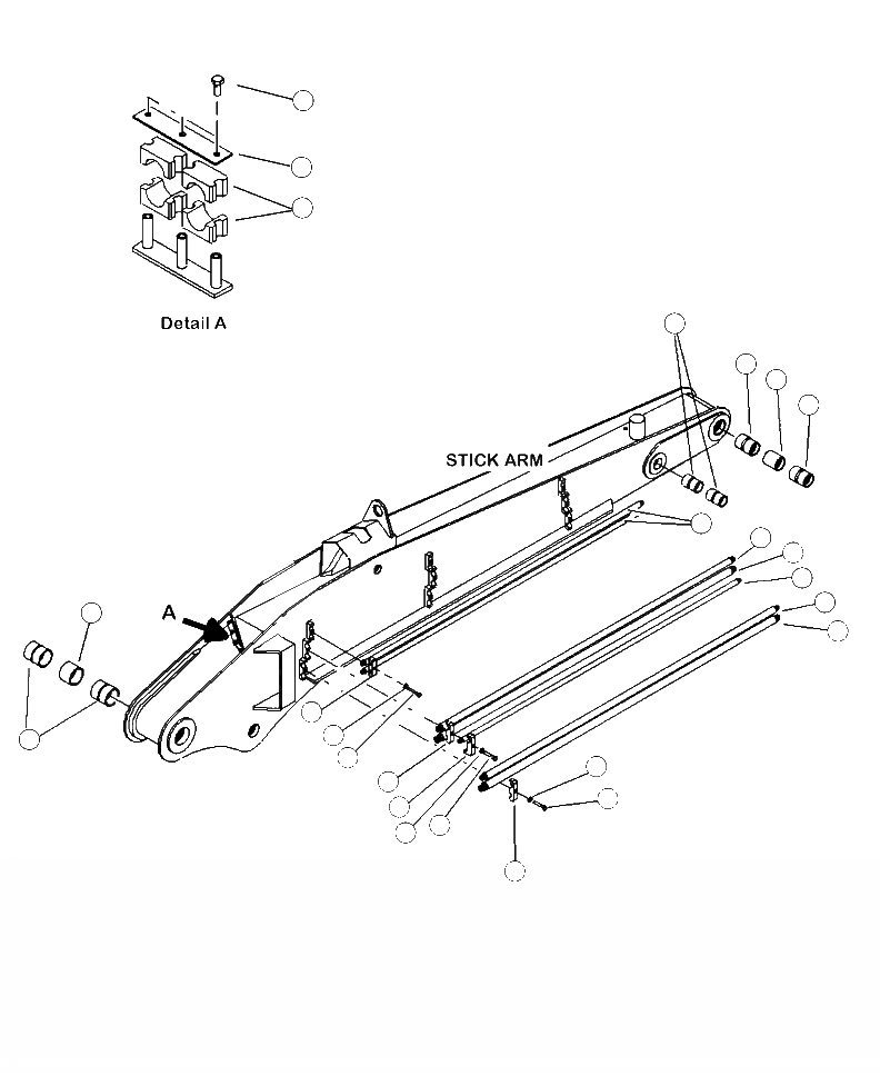
7
6
5
1
1
2
1
8
9
10
8
9
4
10
15
11
3
13
11
14
12
16
13
11
14
FIT
1:1
100%

Артикул

Название

Примечание

Количество

1

11704KF

BUSHING (2-1/2 IN X 3 IN x 4-1/4 IN)

SN: A10001--UP

4шт.

2

12268KF

SPACER, NOSE (2-1/2 IN X 3-1/2 IN)

SN: A10001--UP

1шт.

3

18564KF

BUSHING (3-1/2 IN x 4-1/4 IN)

SN: A10001--UP

2шт.

4

85095KF

SPACER, BASE (3-1/2 IN x 3 IN)

SN: A10001--UP

3шт.

|$4

12270KF

CLAMP, VERMATIC

SN: A10001--UP

1шт.

5

NSS

BRACKET

SN: A10001--UP

2шт.

6

NSS

PLATE

SN: A10001--UP

1шт.

7

NSS

BOLT

SN: A10001--UP

3шт.

8

16513KF

TUBE KIT (STRAIGHT 1/2 IN x 80 IN)

SN: A10001--UP

3шт.

N/I

15117KF

CONNECTOR, STR (FF1852T-0808S)

SN: A10001--UP

6шт.

9

16507KF

TUBE KIT (STRAIGHT 3/4 IN x 84 IN)

SN: A10001--UP

2шт.

N/I

15152KF

CONNECTOR, STR (FF1852T-1212S)

SN: A10001--UP

4шт.

10

16506KF

TUBE KIT (STRAIGHT 1 IN x 84 IN)

SN: A10001--UP

2шт.

N/I

15225KF

CONNECTOR, STRAIGHT (FF1852T-1616S)

SN: A10001--UP

4шт.

11

10771KF

WASHER, SAE FLAT (5/8 IN PL GR9)

SN: A10001--UP

9шт.

12

15517KF

BOLT (5/8 IN x 2-1/2 IN)

SN: A10001--UP

6шт.

13

10719KF

BOLT (5/8 IN x 4 IN)

SN: A10001--UP

3шт.

14

15236KF

CLAMP, SADDLE TOP TUBE (3/4 IN x 1 IN)

SN: A10001--UP

6шт.

15

15272KF

CLAMP, SADDLE TOP TUBE (1/2 IN x 1/2 IN)

SN: A10001--UP

3шт.

16

23222KF

CLAMP, SADDLE TOP TUBE (1/2 IN)

SN: A10001--UP

3шт.

Выбрано товаров: 20