Запчасти Komatsu XT430L-2 U-A ИНТЕРЬЕР ПЛАСТИНЫ И ТАБЛИЧКИS МАРКИРОВКА

Схема запчастей Komatsu XT430L-2 - U-A ИНТЕРЬЕР ПЛАСТИНЫ И ТАБЛИЧКИS МАРКИРОВКА
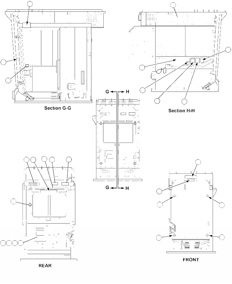
1
10
5
2
4
3
8
7
6
12
9
13
11
2
12
9
14
14
14
14
14
15
16
17
18
FIT
1:1
100%

Артикул

Название

Примечание

Количество

1

4A1-00-10560

PLATE, WELD NOTICE

1шт.

2

4A1-00-10550

PLATE, EMERGENCY EXIT

2шт.

3

4A1-00-10110

PLATE, HYD OIL VISCOSITY-ISO 32

1шт.

|$22

OR

3

-1шт.

3

4A1-00-10120

PLATE, HYD OIL VISCOSITY-ISO 46

1шт.

|$23

OR

5

-1шт.

3

4A1-00-10130

PLATE, HYD OIL VISCOSITY-ISO 68

1шт.

4

16061KF

DECAL, CAB WARNING STRIP

1шт.

5

4A1-00-10510

PLATE, VOLTAGE HAZARD

1шт.

6

4A1-00-10520

PLATE, BACKING CAUTION

1шт.

7

4A1-00-10530

PLATE, LEAVING SEAT

1шт.

8

4A1-00-10540

PLATE, FIRE HAZARD

1шт.

9

4A1-00-10570

PLATE, CHECK ESCAPE HATCH

2шт.

10

DECAL

1шт.

11

4A1-00-10031

PLATE, SERIAL

1шт.

12

4A1-00-10580

PLATE, EMERGENCY ESCAPE

2шт.

13

4A1-00-10021

PLATE, CAB CERT

1шт.

14

19540KF

DECAL, EMERGENCY ESCAPE (1.5 IN DIA)

6шт.

15

09963-03001

TAG

1шт.

16

4A1-00-10080

PLATE, MACHINE OPERATION

1шт.

17

4A1-00-10140

DECAL, DAILY INSPECTION AND CLEANING

1шт.

18

4A1-00-10230

PLATE, LUBRICATION CHART

1шт.

|$24

22

-1шт.

|$25

F1 - PART NUMBER VARIES FOR APPLICATION.

23

-1шт.

Выбрано товаров: 24