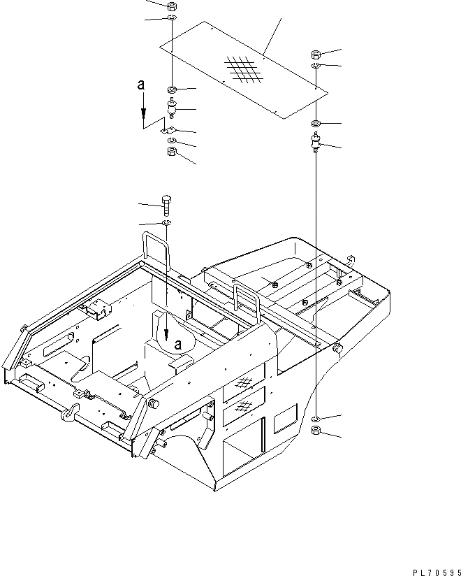
Запчасти Komatsu JV25CR-7 ПОЛ ПАНЕЛЬ ЧАСТИ КОРПУСА

Схема запчастей Komatsu JV25CR-7 - ПОЛ ПАНЕЛЬ ЧАСТИ КОРПУСА
1
2
2
3
3
3
3
4
4
4
4
5
5
6
7
8
FIT
1:1
100%

Артикул

Название

Примечание

Количество

1

266-10-83810

PLATE

SN: 7201-UP

1шт.

2

258-10-13930

CUSHION

SN: 7201-UP

6шт.

3

01580-10605

NUT

SN: 7201-UP

12шт.

4

01602-20619

WASHER,SPRING

SN: 7201-UP

12шт.

5

266-91-08030

WASHER

SN: 7201-UP

6шт.

6

266-10-73940

BRACKET

SN: 7201-UP

3шт.

7

01010-80820

BOLT

SN: 7201-UP

3шт.

8

01602-20825

WASHER,SPRING

SN: 7201-UP

3шт.

Выбрано товаров: 8