Запчасти Komatsu JV40CW-5 МАСЛ. SPRAY ТРУБЫ УПРАВЛ-Е РАБОЧИМ ОБОРУДОВАНИЕМ

Схема запчастей Komatsu JV40CW-5 - МАСЛ. SPRAY ТРУБЫ УПРАВЛ-Е РАБОЧИМ ОБОРУДОВАНИЕМ
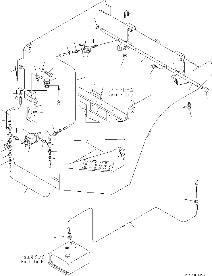
1
2
2
3
4
5
6
7
8
9
9
10
11
11
12
12
13
14
15
16
17
18
18
19
20
20
21
22
23
24
24
25
26
27
28
29
30
31
31
32
33
33
FIT
1:1
100%

Артикул

Название

Примечание

Количество

1

258-20-27524

HOSE

SN: 6001-UP

1шт.

2

07281-10137

CLAMP

SN: 6001-UP

2шт.

3

YM129052-55630

FILTER

SN: 6001-UP

1шт.

4

YM198072-04320

CLAMP

SN: 6001-UP

1шт.

5

01010-80820

BOLT

SN: 6001-UP

1шт.

6

01602-20825

WASHER,SPRING

SN: 6001-UP

1шт.

7

01580-10806

NUT

SN: 6001-UP

1шт.

8

266-58-86630

HOSE

SN: 6001-UP

1шт.

9

07281-10137

CLAMP

SN: 6001-UP

2шт.

10

257-80-15610

NIPPLE

SN: 6001-UP

1шт.

11

07324-00100

TEE

SN: 6001-UP

2шт.

12

07325-00100

NIPPLE

SN: 6001-UP

2шт.

13

258-80-56101

PUMP ASS'Y

SN: 6001-UP

1шт.

|13

0

PUMP ASS'Y

SN: (6001-.)

1шт.

14

01220-40625

SCREW

SN: 6001-UP

4шт.

15

01602-20619

WASHER,SPRING

SN: 6001-UP

4шт.

16

07325-00100

NIPPLE

SN: 6001-UP

1шт.

17

257-20-17550

VALVE

SN: 6001-UP

1шт.

18

257-80-15610

NIPPLE

SN: 6001-UP

2шт.

19

266-80-76420

HOSE

SN: 6001-UP

1шт.

20

07281-10137

CLAMP

SN: 6001-UP

2шт.

21

265-98-12001

ELBOW

SN: 6001-UP

1шт.

22

257-80-15610

NIPPLE

SN: 6001-UP

1шт.

23

266-20-67520

HOSE

SN: 6001-UP

1шт.

24

07281-10137

CLAMP

SN: 6001-UP

2шт.

25

257-80-15610

NIPPLE

SN: 6001-UP

1шт.

26

258-80-56400

VALVE

SN: 6001-UP

1шт.

27

07325-00100

NIPPLE

SN: 6001-UP

1шт.

28

258-80-56310

PIPE

SN: 6001-UP

1шт.

29

258-80-26420

NOZZLE

SN: 6001-UP

4шт.

30

258-85-14710

VALVE

SN: 6001-UP

1шт.

31

266-15-08000

CAP

SN: 6001-UP

2шт.

32

01599-01011

NUT

SN: 6001-UP

4шт.

33

07283-22236

CLIP

SN: 6001-UP

2шт.

Выбрано товаров: 34