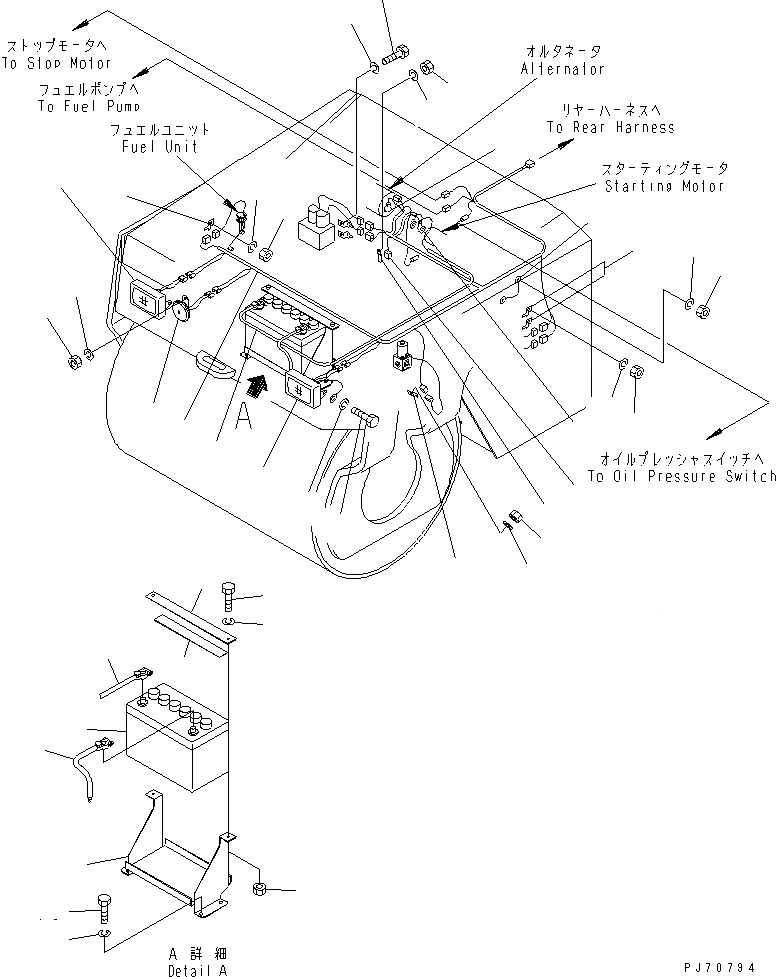
Запчасти Komatsu JV40CW-5 ЭЛЕКТРИКА (/) (ПЕРЕДН. РАМА) КОМПОНЕНТЫ ДВИГАТЕЛЯ И ЭЛЕКТРИКА

Схема запчастей Komatsu JV40CW-5 - ЭЛЕКТРИКА (/) (ПЕРЕДН. РАМА) КОМПОНЕНТЫ ДВИГАТЕЛЯ И ЭЛЕКТРИКА
1
1
2
3
4
5
6
7
8
8
9
10
11
12
13
13
14
15
16
16
17
18
19
20
20
20
20
21
21
22
23
23
23
23
23
24
24
24
24
25
FIT
1:1
100%

Артикул

Название

Примечание

Количество

1

2691-2-16200

LAMP ASS'Y,HEAD

SN: 6001-UP

2шт.

|1

2691-2-16260

BULB¤ 25W

SN: 6001-UP

1шт.

2

265-20-13623

HORN

SN: 6001-UP

1шт.

3

257-20-16630

BATTERY

SN: 6001-UP

1шт.

|3

2691-2-46630

BATTERY,(FOR COLD WEATHER)

SN: 6001-UP

1шт.

4

258-20-56120

HOLDER

SN: 6001-UP

1шт.

5

258-20-56102

CASE,BATTERY

SN: 6001-UP

1шт.

6

257-20-16620

CUSHION

SN: 6001-UP

3шт.

7

258-20-56832

HARNESS,(INCLUDE NO.25)

SN: 6001-UP

1шт.

8

258-20-56130

CABLE

SN: 6001-UP

1шт.

9

266-20-22240

CABLE

SN: 6001-UP

1шт.

10

258-20-16841

CABLE

SN: 6001-UP

1шт.

11

265-20-13740

CAP

SN: 6001-UP

1шт.

12

265-20-13370

CAP

SN: 6001-UP

1шт.

13

258-20-56160

CLIP

SN: 6001-UP

5шт.

14

258-20-56170

CLIP

SN: 6001-UP

1шт.

15

258-20-56950

BRACKET

SN: 6001-UP

1шт.

16

01010-80820

BOLT

SN: 6001-UP

6шт.

17

01010-81016

BOLT

SN: 6001-UP

2шт.

18

01010-81020

BOLT

SN: 6001-UP

4шт.

19

01580-10605

NUT

SN: 6001-UP

1шт.

20

01580-10806

NUT

SN: 6001-UP

5шт.

21

01580-11008

NUT

SN: 6001-UP

3шт.

22

01602-20619

WASHER,SPRING

SN: 6001-UP

1шт.

23

01602-20825

WASHER,SPRING

SN: 6001-UP

9шт.

24

01602-21030

WASHER,SPRING

SN: 6001-UP

9шт.

25

258-20-56940

FUSE,30A

SN: 6001-UP

1шт.

Выбрано товаров: 27