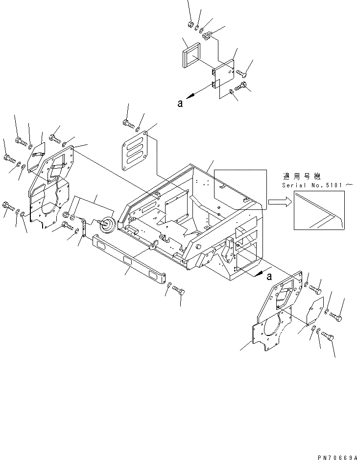
Запчасти Komatsu JV40DW-3 ПЕРЕДН. РАМА И КРЫШКА(/) (РОЛИК И БОКОВ. КРЫШКА ДВИГ.) ЧАСТИ КОРПУСА

Схема запчастей Komatsu JV40DW-3 - ПЕРЕДН. РАМА И КРЫШКА(/) (РОЛИК И БОКОВ. КРЫШКА ДВИГ.) ЧАСТИ КОРПУСА
1
2
3
4
4
5
5
6
7
8
9
10
11
11
12
13
14
14
15
15
16
17
18
19
20
21
22
23
24
25
26
26
27
27
28
28
29
29
30
30
31
FIT
1:1
100%

Артикул

Название

Примечание

Количество

1

258-10-41001

FRAME,FRONT

SN: 5116-UP

1шт.

|1

258-10-41000

FRAME,FRONT

SN: 5101-5115

1шт.

|1

258-10-31000

FRAME,FRONT

SN: 5001-5100

1шт.

2

258-10-42900

COVER,L.H.

SN: 5101-UP

1шт.

|2

258-10-32900

COVER,L.H.

SN: 5001-5100

1шт.

3

258-10-42800

COVER,R.H.

SN: 5101-UP

1шт.

|3

258-10-32800

COVER,R.H.

SN: 5001-5100

1шт.

4

01010-81660

BOLT

SN: 5001-UP

18шт.

5

01602-21648

WASHER,SPRING

SN: 5001-UP

18шт.

6

258-10-26310

COVER

SN: 5001-UP

1шт.

7

257-10-17610

MIRROR

SN: 5001-UP

1шт.

8

258-10-27511

STAY

SN: 5001-UP

1шт.

9

01010-81020

BOLT

SN: 5001-UP

2шт.

10

01010-81040

BOLT

SN: 5001-UP

2шт.

11

01602-21030

WASHER,SPRING

SN: 5001-UP

4шт.

12

2691-1-46800

COVER

SN: 5001-UP

1шт.

13

258-10-46700

COVER

SN: 5101-UP

1шт.

|13

2691-1-46700

COVER

SN: 5001-5100

1шт.

14

01010-80816

BOLT

SN: 5001-UP

8шт.

15

01602-20825

WASHER,SPRING

SN: 5001-UP

8шт.

16

258-10-26900

LATCH

SN: 5001-UP

1шт.

17

01235-40516

SCREW

SN: 5001-UP

2шт.

18

01580-10504

NUT

SN: 5001-UP

2шт.

19

01602-20513

WASHER,SPRING

SN: 5001-UP

2шт.

20

01641-20508

WASHER

SN: 5001-UP

2шт.

21

01252-71035

BOLT

SN: 5001-UP

1шт.

22

01602-21030

WASHER,SPRING

SN: 5001-UP

1шт.

23

26991-12-480

WASHER

SN: 5001-UP

1шт.

24

258-10-23501

SUPPORT,L.H.

SN: 5001-UP

1шт.

25

258-10-23601

SUPPORT,R.H.

SN: 5001-UP

1шт.

26

01010-80816

BOLT

SN: 5001-UP

4шт.

27

01602-20825

WASHER,SPRING

SN: 5001-UP

4шт.

28

01010-80812

BOLT

SN: 5001-UP

2шт.

29

01602-20825

WASHER,SPRING

SN: 5001-UP

2шт.

30

01640-20816

WASHER

SN: 5001-UP

2шт.

31

258-10-36620

SEAT

SN: 5001-UP

1шт.

Выбрано товаров: 36