Запчасти Komatsu 510-1 ПАНЕЛЬ ПРИБОРОВ(№-) КОМПОНЕНТЫ ДВИГАТЕЛЯ И ЭЛЕКТРИКА

Схема запчастей Komatsu 510-1 - ПАНЕЛЬ ПРИБОРОВ(№-) КОМПОНЕНТЫ ДВИГАТЕЛЯ И ЭЛЕКТРИКА
FIT
1:1
100%

Артикул

Название

Примечание

Количество

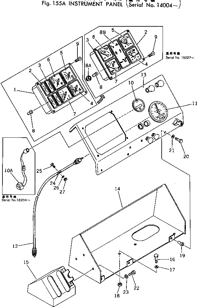
1

385-10227223

GAUGE CLUSTER

SN: 16612-UP

1шт.

|1

0

GAUGE CLUSTER

SN: 15027-16611

1шт.

|1

385-11015851

GAUGE CLUSTER

SN: 14004-15026

1шт.

2

385-10227451

BEZEL

SN: 15027-UP

1шт.

|2

385-11040791

LENS,WARNING LAMP

SN: 10001-15026

1шт.

3

385-10227461

GASKET

SN: 15027-UP

1шт.

|3

385-11040801

LENS,WARNING LAMP

SN: 10001-15026

1шт.

4

385-10227501

VOLTMETER

SN: 15027-UP

1шт.

|4

385-11040811

VOLTMETER

SN: 10001-15026

1шт.

5

385-10227491

GAUGE,FUEL

SN: 15027-UP

1шт.

|5

385-11040821

GAUGE,FUEL

SN: 10001-15026

1шт.

6

385-10227471

GAUGE,ENGINE WATER TEMPERATURE

SN: 15027-UP

1шт.

|6

385-11040831

GAUGE,ENGINE WATER TEMPERATURE

SN: 10001-15026

1шт.

7

385-10227481

GAUGE,TORQUE CONVERTER OIL TEMP.

SN: 15027-UP

1шт.

|7

385-11040841

GAUGE,TORQUE CONVERTER OIL TEMP.

SN: 10001-15026

1шт.

8

385-10227511

BULB,PILOT LAMP

SN: 15027-UP

8шт.

|8

382-027727-1

BULB,PILOT LAMP

SN: 10001-15026

8шт.

8A

385-10340861

SOCKET

SN: 15027-UP

1шт.

8B

385-10340851

LENS,WARNING LAMP

SN: 15027-UP

1шт.

9

384-0133578

SCREW

SN: 10001-UP

4шт.

10

385-10294301

METER,SERVICE

SN: 16204-UP

1шт.

|10

385-11047951

METER,SERVICE

SN: 10001-16203

1шт.

10A

385-10384861

SOCKET ASS'Y

SN: 16204-UP

1шт.

11

385-11047941

SPEEDOMETER

SN: 10001-UP

1шт.

12

385-11047931

CABLE

SN: 10001-UP

1шт.

13

385-10314221

PANEL,INSTRUMENT

SN: 15027-UP

1шт.

|13

385-10214822

PANEL,INSTRUMENT

SN: 14004-15026

1шт.

14

385-11048571

SUPPORT

SN: 10001-UP

1шт.

15

385-11048613

SUPPORT

SN: 10464-UP

1шт.

16

382-024842-1

BOLT

SN: 10001-UP

4шт.

17

382-025534-1

WASHER

SN: 10001-UP

4шт.

18

382-025522-1

NUT

SN: 10001-UP

4шт.

19

381-934811-1

CUSHION

SN: 10001-UP

6шт.

20

382-025483-1

BOLT

SN: 10001-UP

6шт.

21

382-025532-1

WASHER

SN: 10001-UP

6шт.

22

382-025752-1

BOLT

SN: 10001-UP

3шт.

23

382-025532-1

WASHER

SN: 10001-UP

3шт.

24

381-299401-1

CLIP

SN: 14004-UP

1шт.

25

382-025483-1

BOLT

SN: 14004-UP

1шт.

26

382-025532-1

WASHER

SN: 14004-UP

1шт.

27

382-025519-1

NUT

SN: 14004-UP

1шт.

Выбрано товаров: 41