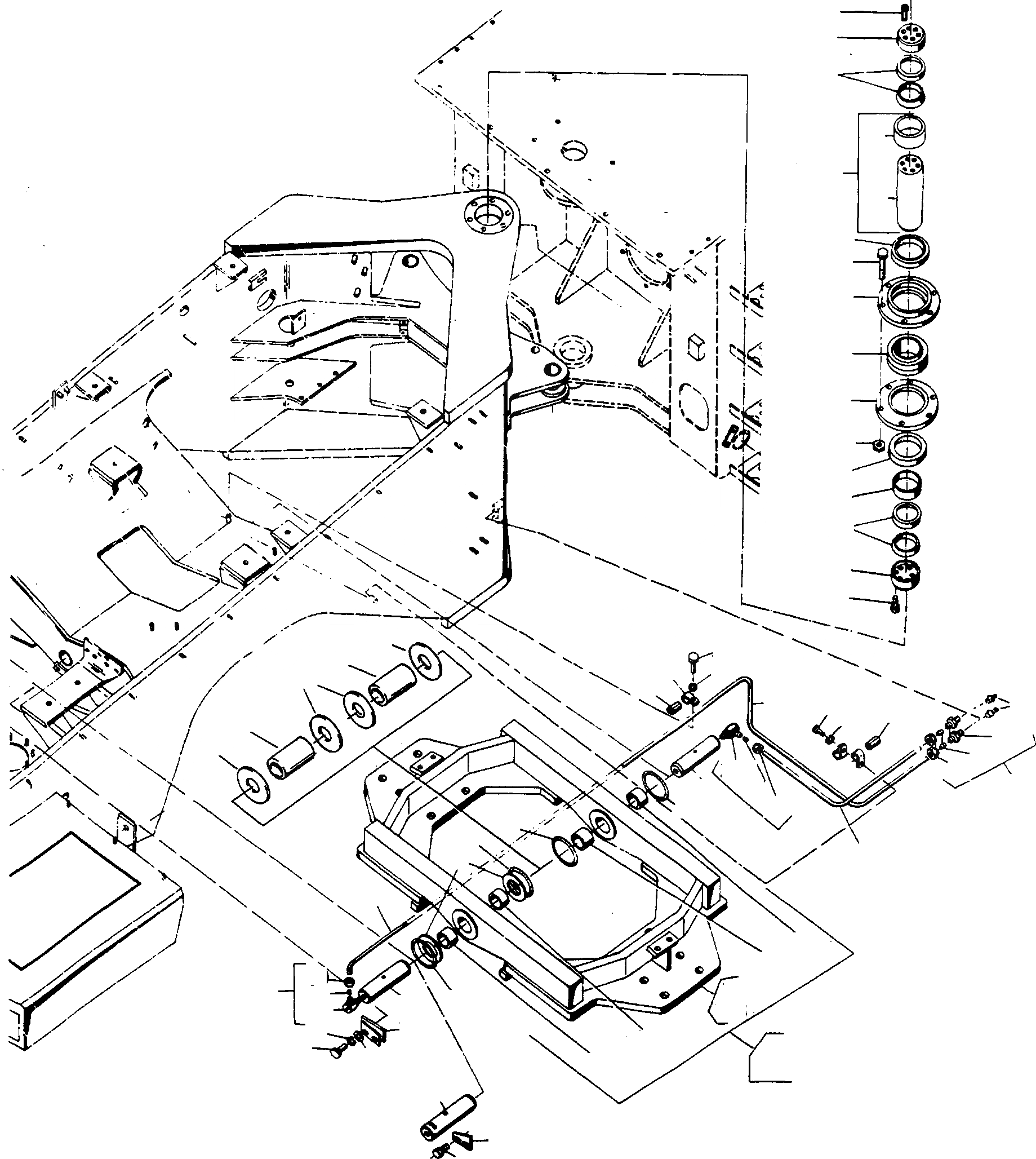
Запчасти Komatsu 77C HINGE ШАССИ И SUPERSTRUCTURE

Схема запчастей Komatsu 77C - HINGE ШАССИ И SUPERSTRUCTURE
4
1
11
2
12
3
3
26
27
27
32A
34
29A
31
29
14
15A
15B
6
16
17
19A
18A
20A
19
29
29A
31
30
15D
15C
15C
15D
15D
5
7
8
9
10
9
7
2
1
25
28
24
35
26
28
33
25
32
18
30
17
17
17
23
24
15
15
18
21
15
13
20
22
15
FIT
1:1
100%

Артикул

Название

Примечание

Количество

1

1443718X1

SCREW

DeutschDesc: SCHRAUBE

24шт.

2

2943572M1

FLANGE

DeutschDesc: FLANSCH

4шт.

3

2999915M1

ELEMENT

DeutschDesc: ELEMENT

8шт.

4

2948290M91

PIN

DeutschDesc: BOLZEN

2шт.

5

PIN

EnglischBem: ORDER 2948 290 M91

2шт.

6

1444568X1

INNER RACE

DeutschDesc: INNENRING

2шт.

7

1444742X1

SEAL

DeutschDesc: DICHTRING

4шт.

8

1444028X1

SCREW

DeutschDesc: SCHRAUBE

12шт.

9

2943574M1

COVER

DeutschDesc: DECKEL

4шт.

10

1444578X1

BALL AND SOCKET JOIN

DeutschDesc: GELENKLAGER

2шт.

11

1444303X1

NUT

DeutschDesc: MUTTER

12шт.

12

1444568X1

INNER RACE

DeutschDesc: INNENRING

2шт.

13

2948287M92

CARRIER

SN: 377520505

1шт.

14

CARRIER

EnglischBem: ORDER 2948 287 M92

1шт.

15

2999865M1

BUSHING

EnglischBem: SI 1800/87-25

4шт.

15A

4003204M91

AXLE CARRIER

SN: 377520506-UP

1шт.

15B

CARRIER

EnglischBem: ORDER 4003 204 M91

1шт.

15C

4003598M1

BUSHING

EnglischBem: SI 1800/87-25

2шт.

15D

4003603M1

DISC

EnglischBem: SI 1800/87-25

-26шт.

16

2948135M1

THRUST WASHER

EnglischBem: SI 1800/87-25

2шт.

17

1444818X1

O-RING

DeutschDesc: O-RING

4шт.

18

2948134M1

PIN

SN: 377510055-377510055

2шт.

18A

3092386M1

PIN

SN: 377510056-377510056

2шт.

19

2951969M91

AXLE HOLDER

SN: 377510055-377510055

2шт.

19A

2950005M1

AXLE HOLDER

SN: 377510056-377510056

4шт.

20

339020X1

SCREW

SN: 377510055-377510055

4шт.

20A

1444132X1

SCREW

SN: 377510056-377510056

8шт.

21

1443792X1

SPRING WASHER

SN: 377510055-377510055

4шт.

22

390734X1

PLAIN WASHER

SN: 377510055-377510055

4шт.

23

2948263M1

PIPE

DeutschDesc: ROHRLEITUNG

1шт.

24

3097255M1

PIPE

EnglischBem: REPAIRS AND REPLACES 2948 264 M1

1шт.

25

2869841M1

CLIP

DeutschDesc: SCHELLE

3шт.

26

2950370M1

HOSE

DeutschDesc: SCHLAUCH

3шт.

27

339230X1

SCREW

DeutschDesc: SCHRAUBE

2шт.

28

1443791X1

SPRING WASHER

DeutschDesc: FEDERRING

2шт.

29

3004178X1

UNION

DeutschDesc: VERSCHRAUBUNG

2шт.

29A

UNION

EnglischBem: ORDER 3004 178 X91

2шт.

30

1444687X1

BOXNUT

DeutschDesc: UEBERWURFMUTTER

2шт.

31

1444695X1

OLIVE

DeutschDesc: SCHNEIDRING

2шт.

32

3002070X91

UNION

DeutschDesc: VERSCHRAUBUNG

2шт.

32A

STUD

EnglischBem: ORDER 3002 070 X91

2шт.

33

1444687X1

BOXNUT

DeutschDesc: UEBERWURFMUTTER

2шт.

34

1444695X1

OLIVE

DeutschDesc: SCHNEIDRING

2шт.

35

339608X1

LUBRICATION NIPPLE

DeutschDesc: SCHMIERNIPPEL

2шт.

Выбрано товаров: 44